草加市両新田東町II 6.3% 7,651万円 1棟アパート
ここに注目!新着情報:草加市両新田東町II 6.3% 7,651万円 1棟アパートの空室情報ならコチラ。この立地であれば投資用にも適しているのではないでしょうか。安らぎの環境のある、7,651万円の快適な物件です。不動産の収益力の目安として用いられることの多い利回り。こちらの物件は想定利回りが6.3%です。中国語対応可。
| 価格 |
7,651万円
利回り6.3%
|
|---|---|
| 住所 | 埼玉県草加市両新田東町 (詳細非公開) |
| 交通 | 見沼代親水公園駅(バスで4分)|「古千谷橋」停(徒歩13分) |
| 築年月 | 建築中(2026年6月完成予定) |
| 構造 | 木造 |
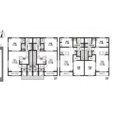
| 面積 | 土地:195.04m² (58.99坪) 専有:204.53m² (61.87坪) |
| 現況 | 総戸数4戸 |
【WEB面談可】
販売状況、見学、詳細を知りたい方はこちら!
お電話の際は「連合隊の物件」とお伝えください。
新着 情報掲載期限:あと29日(更新日 2026/4/27)
- 物件写真・概要
- 周辺地図
-
【WEB面談可】
販売状況、見学、詳細を知りたい方はこちら!おすすめポイント
- 建築中
交通
- 見沼代親水公園駅日暮里・舎人ライナーバス4分
- 「古千谷橋」停徒歩13分(約1000m)
物件概要
建物の階建 地上2階建 間取り 駐車場 接道状況 都市計画区域 用途地域 私道負担 地目/地勢 国土法届出 不要 土地権利 所有権 引渡し 相談 取引態様 仲介 物件No 仲介手数料概算 不動産会社へお問合せください 設備・特徴 備考 一棟売り・収益物件 -
ホームページはこちら
東京都知事 (1) 第108489号
(株)クレリア 【WEB面談可】
※連合隊は物件情報の精度向上に努めています:「物件情報に誤りがある」「成約済みである」などお気付きの点がございましたらこちらよりご連絡ください。
写真枚数:1枚