新宿区 1億8,500万円 2.46% 一棟アパート
ここに注目!お値段1億8,500万円の物件です。この物件は内観も綺麗で設備も充実した、2020年6月築となっています。投資・実需、いずれかに対応できる物件です。不動産が投資に適しているかどうか判断の目安としてチェックされることが多いのが利回りです。2.46%の想定利回りの物件はこちら。 中国語対応可
| 価格 |
1億8,500万円
利回り2.46%
|
|---|---|
| 住所 | 東京都新宿区北新宿1丁目 |
| 交通 | |
| 築年月 | 築5年(2020年6月) |
| 構造 | 木造 |
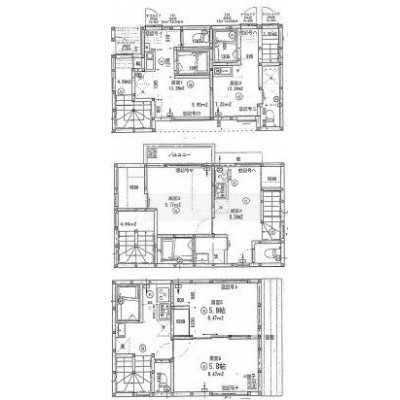
| 面積 | 建物:99.08m² (29.97坪)/ 土地:95.33m² (28.83坪) 専有:99.08m² (29.97坪) |
| 現況 | 総戸数1戸 |
【WEB面談可】
販売状況、見学、詳細を知りたい方はこちら!
お電話の際は「連合隊の物件」とお伝えください。
情報掲載期限:あと21日(更新日 2026/4/21)
- 物件写真・概要
- 周辺地図
-
【WEB面談可】
販売状況、見学、詳細を知りたい方はこちら!おすすめポイント
- 築10年以内
物件概要
建物の階建 地上3階建 間取り 駐車場 接道状況 都市計画区域 用途地域 - 第1種中高層住居専用地域(建ぺい率:60% / 容積率:300%)
私道負担 地目/地勢 国土法届出 不要 土地権利 所有権 引渡し 相談 取引態様 仲介 物件No 仲介手数料概算 不動産会社へお問合せください 設備・特徴 備考 一棟売り・収益物件 -
ホームページはこちら
東京都知事 (1) 第108489号
(株)クレリア 【WEB面談可】
※連合隊は物件情報の精度向上に努めています:「物件情報に誤りがある」「成約済みである」などお気付きの点がございましたらこちらよりご連絡ください。
写真枚数:2枚