廿日市市住吉1丁目アパート
ここに注目!・再建築不可 ・令和7年1月末リフォーム完了(全面改装)
| 価格 |
1,280万円
利回り16.03%
満室時想定年収:205万2,000円
|
|---|---|
| 住所 | 広島県廿日市市住吉1-13 |
| 交通 | 廿日市駅(徒歩17分)|廿日市市役所前(平良)駅(徒歩15分)道順を見る |
| 築年月 | 築55年(1970年12月) |
| 構造 | 木造 |
| 面積 | 建物:156.86m² (47.45坪)/ 土地:148.98m² (45.06坪)(公簿) 専有:37.43m² (11.32坪) |
| 現況 | 現在満室(総戸数4戸中 4戸賃貸中) |
【WEB面談可】
販売状況、見学、詳細を知りたい方はこちら!
お電話の際は「連合隊の物件」とお伝えください。
新着 情報掲載期限:あと29日(更新日 2026/3/22)
- 物件写真・概要
- 周辺地図
-
【WEB面談可】
販売状況、見学、詳細を知りたい方はこちら!おすすめポイント
- 現在満室
- 利回り16%超
- リフォーム済み
交通色がついているアイコンをクリックすると、本物件までの道順を見ることができます。
物件概要
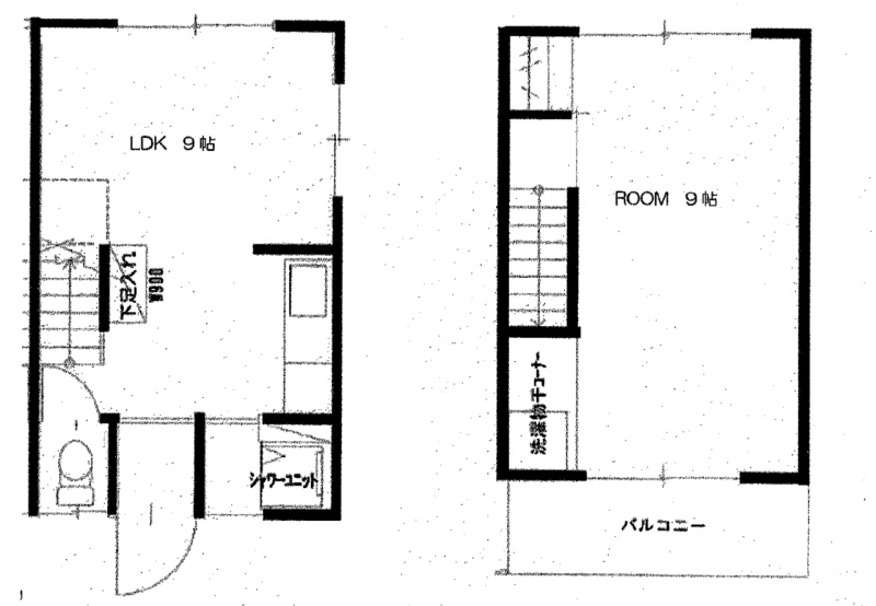
建物の階建 地上2階建 間取り 1LDK×4戸 駐車場 接道状況 - 北西側幅1.30mの道に接道
都市計画区域 市街化区域 用途地域 - 第1種住居地域(建ぺい率:60% / 容積率:200%)
私道負担 地目/地勢 地勢:平坦 国土法届出 土地権利 所有権 その他費用 その他 - 令和7年度固都税:5万6,100円
引渡し 即時 取引態様 仲介 物件No 仲介手数料概算 不動産会社へお問合せください 修繕履歴 - 2025年1月頃に部分的にリフォームしています。施工内容:間取変更、キッチン、トイレ、シャワーユニット、洗濯パン、給湯器交換、 床張替、クロス張替、玄関扉交換、インターフォンテレビ付変更、玄関ポーチ張替、外壁補修・塗装、ベランダ屋根交換
設備・特徴 備考 賃貸状況:4部屋満室賃貸中 ・再建築不可 ・オーナーチェンジ ・プロパン業者指定有 ・令和7年1月末リフォーム完了(全面改装) ・メゾネットタイプ:1FLDK9.5 、2F 洋9 ・設備:B・T別、シャワー、シャワールーム、トイレ、収納スペース、室内洗濯機置場、給湯、プロパンガス、冷房、防犯カメラ、宅配BOX -
※連合隊は物件情報の精度向上に努めています:「物件情報に誤りがある」「成約済みである」などお気付きの点がございましたらこちらよりご連絡ください。
写真枚数:3枚
株式会社ファウンティンは地方と郊外の収益物件売買仲介がメインの会社になります。
【ファウンティンの特徴】 収益物件の売買仲介をメインに、全国40都道府県以上で取引実績があります。法定耐用年数超え物件の融資付けに強く、最適な金融機関や地方の管理会社をご紹介。初心者や借入が多い方向けの無料相談も実施中です。未公開の地方アパート・築古戸建て情報はLINE(@fountaintokyo)で先行配信。年間1万件超の反響を活かした売却サポートまで、総合的にお任せください。