ニューガイア大刀洗
ここに注目!【スタイリッシュなニューガイア大刀洗✨三井郡大刀洗(ミイグンタチアライマチ)は久留米市、鳥栖のお隣に位置する、自然豊かな場所です】 屋上一面に太陽光パネルを設置し各世帯にパネルを割り当て、全戸発電した電気が個別供給システムの全戸個別供給型太陽光発電付マンション。太陽光発電で作った電力をフルに活用できるオール電化によりお得な料金プランが 利用でき、一般住宅より割安な光熱費を実現できる独自の技術を生かしたマンション。昼間の余った電気を割高な料金で売り、割安で利用できる深夜時間の電気を上手に利用することで光熱費がぐっと抑えられます。 光熱費の大幅な削減が可能となることで近隣の一般マンションとの差別化が図れるため近隣の賃料相場より1~2割程高い賃料設定にすることも可能。 【設備】 ★オール浄水器(セントラル浄水器設置。キッチン、浴室、洗面所、洗濯も浄水がでます。) ★エコキュート★対面フラットシステムキッチン全戸設置★IHクッキングヒーター★カウンター下収納 ★オートロック★駐車場シャッターゲート★防犯カメラシステム ★リビングエアコン★温水洗浄便座★駐車場区画の内2区画は来客用駐車場
| 価格 |
1億9,000万円
利回り7.03%
満室時想定年収:1,336万7,744円
|
|---|---|
| 住所 | 福岡県三井郡大刀洗町大字上高橋1245番12 |
| 交通 | 大堰駅(徒歩26分)道順を見る |
| 築年月 | 築20年(2006年1月) |
| 構造 | 鉄筋コンクリート(RC)造 |
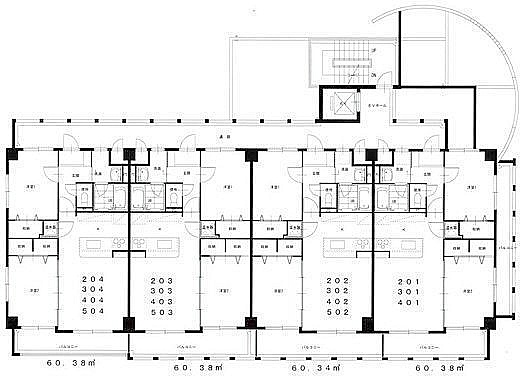
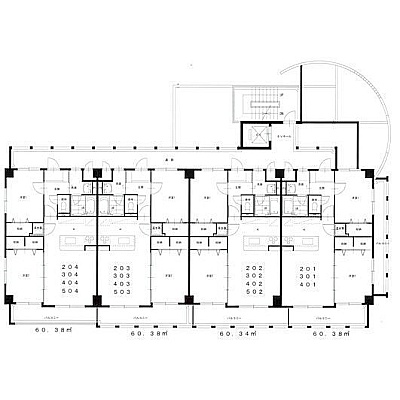
| 面積 | 建物:1158.46m² (350.43坪)/ 土地:976.4m² (295.36坪)(公簿) 専有:最小60.34m² (18.25坪)~最大60.38m² (18.26坪) |
| 現況 | 現在満室(総戸数15戸中 15戸賃貸中) |
販売状況、見学、詳細を知りたい方はこちら!
お電話の際は「連合隊の物件」とお伝えください。
新着 情報掲載期限:あと28日(更新日 2026/3/6)
- 物件写真・概要
- 周辺地図
-
▼クリックで左の拡大画像が変わります。 すべての写真を拡大
販売状況、見学、詳細を知りたい方はこちら!
おすすめポイント
- 現在満室
- 土地100坪超
- 戸数分駐車場あり
- 家賃保証
交通色がついているアイコンをクリックすると、本物件までの道順を見ることができます。
物件概要
建物の階建 地上5階建 間取り 2LDK×15戸 駐車場 あり 駐車場台数:31台接道状況 - 東側幅6.00mの公道に32.80m接道
都市計画区域 その他 用途地域 - 無指定(建ぺい率:60% / 容積率:200%)
私道負担 なし 地目/地勢 宅地 地勢:平坦 国土法届出 不要 土地権利 所有権 引渡し 即時 取引態様 仲介 物件No 仲介手数料概算 不動産会社へお問合せください 修繕履歴 - 2020年12月頃に部分的にリフォームしています。施工内容:屋上防水
設備・特徴 - エレベーター
- バス/トイレ別
- オートロック
- ペット相談可
- 家賃保証
備考 別途共有地有(1254番3、12.98㎡)持分4/5 主な周辺施設色がついているアイコンをクリックすると、本物件までの道順を見ることができます。
-
※連合隊は物件情報の精度向上に努めています:「物件情報に誤りがある」「成約済みである」などお気付きの点がございましたらこちらよりご連絡ください。
写真枚数:10枚
外観
図面
エントランス
エントランス(オートロック)
屋内駐車場
屋内駐車場
全室2LDK
収納たっぷりキッチン
広々キッチン
ダイニング側にはたっぷり収納
「地球環境を守ろう」をスローガンに芝浦グループが開発した日本初の全戸個別供給型太陽光発電マンション「ニューガイア」シリーズを展開しております。
《事業内容》 不動産仲介・売買・管理・賃貸業 マンション企画開発・販売及び販売代理 分譲・賃貸マンション管理 オフィスビル管理/パーキング運営・管理 太陽光発電所の売買