別海緑町
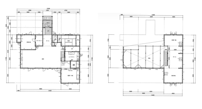
ここに注目!北海道野付郡別海町に、広大な敷地を持つ魅力的な一戸建てが登場しました。約1000坪ものゆとりある土地に建つ、木造2階建ての3LDK。延床面積約58坪の広々とした木を基調とした空間はのびのびと過ごせます。 敷地内には約738坪の森林があり、家でウッドデッキ・テラスからの自然を満喫したり、アウトドア、バードウォッチング等ゆとりある暮らしを実現します。 また33帖の広々としたリビングダイニングと、32帖の2階洋室、吹き抜けのある開放的な空間は、日当りも良好で、明るい陽光が差し込み、日々の暮らしを豊かに彩ってくれます。 広々とした車庫もあり、雨の日でも車庫でバーベキューができます。 2階間取図では3部屋に分かれていますが、現状はワンフロアの仕様です。 別荘などのお住まいのほか、事務所や各種施設等の事業用途としても素晴らしい労務環境を提供できるほか 、価格についても建築費用から大幅に下げた価格となっており、大変オススメの物件です。 ローン等資金計画も弊社にてファイナンシャルプランナーがご相談お受けしますので、お気軽にお問い合わせください。
| 価格 |
4,500万円
|
|---|---|
| 建物面積 | 191.16m² (57.82坪) |
| 土地面積 | 3308.91m² (1000.94坪)(公簿) |
| 間取り | 3LDK1階:LD33帖 洋室8帖 和室6帖 / 2階:洋室32帖 / その他:K10帖 |
| 住所 | 北海道野付郡別海町別海緑町109-11 |
| 交通 | 交通情報はありません |
| 築年月 | 築23年(2003年1月) |
| 駐車場 |
あり 駐車可能台数:3台
|
販売状況、見学、詳細を知りたい方はこちら!
お電話の際は「連合隊の物件」とお伝えください。
新着 情報掲載期限:あと29日(更新日 2026/1/29)
- 物件写真・概要
- 周辺地図
-
販売状況、見学、詳細を知りたい方はこちら!
おすすめポイント
- 即引渡し可
- 駐車2台以上可
- 車庫あり
- 南向き
交通
交通情報はありません
物件概要
建物の階建 地上2階建 主要採光面 南 構造 木造 バルコニー あり- ウッドデッキ・テラス
接道状況 一方 都市計画区域 都市計画区域外 私道負担 なし 地目/地勢 宅地 地勢:平坦 国土法届出 不要 土地権利 所有権 用途地域 - 無指定
引渡し 即時 現況 空き 取引態様 仲介 物件No 仲介手数料概算 155万1,000円(金額は概算です。正確な金額は不動産会社へお問合せ下さい) 設備・特徴 - 閑静な住宅街
- 車庫あり
- 物置
- 庭が広い(10坪以上)
- 玄関フード
- デザイナーズ
- 日当り良好
- 吹き抜け
- 天井高2.5m以上
- フローリング
- バリアフリー
- ウォークインクローゼット
- シューズボックス
- 納戸・トランクルーム
- 全居室収納あり
- 温水洗浄トイレ
- 食器洗乾燥機
- LPガス
- 電気暖房
- ブロードバンド回線(光ファイバー等の高速インターネット)
- 田舎暮らし向き
備考 学区色がついているアイコンをクリックすると、本物件までの道順を見ることができます。
主な周辺施設色がついているアイコンをクリックすると、本物件までの道順を見ることができます。
-
ホームページはこちら北海道知事 根室(1) 第57号
FP宅建事務所TOKUMAS
※連合隊は物件情報の精度向上に努めています:「物件情報に誤りがある」「成約済みである」などお気付きの点がございましたらこちらよりご連絡ください。
写真枚数:27枚
建物裏側/静かな森で珍しい鳥も訪れるかもしれませんね!