帯広市西20条北2丁目 事務所
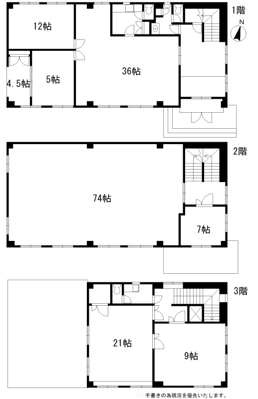
ここに注目!帯広市西20条北2丁目に、事業の可能性を広げる一棟事務所が登場しました。 広大な敷地1058㎡に建つ堅牢な鉄骨造3階建。延床面積405.76㎡のゆとりある空間は、貴社のビジネスニーズに柔軟に対応します。 南向きで日当たりも良く、明るい環境で業務に集中できるでしょう。来客にも便利な無料駐車場15台以上を完備し、ビジネスの拠点として申し分ない環境です。 内装は自由なレイアウトが可能なスケルトン仕様。貴社の事業内容に合わせて、理想のオフィス空間を創り上げられます。寒冷地に適した灯油暖房も備え、冬場も快適にお過ごしいただけます。 工業地域に位置し、事業活動に有利な立地。周辺にはコンビニや公園も点在し、利便性と快適さを兼ね備えています。 この機会に、貴社の新たなビジネスステージをこの場所で始めてみませんか?詳細については、ぜひお気軽にお問い合わせください。
| 価格 |
7,500万円
|
|---|---|
| 建物面積 | 405.76m² (122.74坪) |
| 土地面積 | 1058m² (320.04坪)(公簿) |
| 住所 | 北海道帯広市西二十条北2丁目26-9 |
| 交通 | |
| 築年月 | 築26年(1999年9月) |
| 駐車場 |
あり 駐車可能台数:15台
|
| 用途地域 |
|
販売状況、見学、詳細を知りたい方はこちら!
お電話の際は「連合隊の物件」とお伝えください。
情報掲載期限:あと9日(更新日 2026/1/6)
- 物件写真・概要
- 周辺地図
-
販売状況、見学、詳細を知りたい方はこちら!
おすすめポイント
- 即引渡し可
- 複数路線利用可
- 駐車2台以上可
- スケルトン
物件概要
建物の階建 地上3階建 総戸数 1戸 主要採光面 南 構造 鉄骨造 接道状況 一方 - 東側幅14.00mの公道に23.00m接道 位置指定:無
都市計画区域 市街化区域 私道負担 なし 地目/地勢 宅地 地勢:平坦 国土法届出 土地権利 所有権 用途地域 - 工業地域(建ぺい率:60% / 容積率:200%)
引渡し 即時 現況 空き 取引態様 仲介 物件No 仲介手数料概算 254万1,000円(金額は概算です。正確な金額は不動産会社へお問合せ下さい) 設備・特徴 - 複数路線利用可
- 灯油暖房
- スケルトン
備考 主な周辺施設色がついているアイコンをクリックすると、本物件までの道順を見ることができます。
-
ホームページはこちら北海道知事 石狩(3) 第7934号
(株)常口アトム 帯広支店
※連合隊は物件情報の精度向上に努めています:「物件情報に誤りがある」「成約済みである」などお気付きの点がございましたらこちらよりご連絡ください。
写真枚数:26枚