第二秀恵レジデンス
ここに注目!♦♦投資家様にオススメ!都内高利回り一棟マンション・周辺施設充実♦♦ 東京都調布市深大寺東町に佇む「第二秀恵レジデンス」は、安定した収益をお考えのオーナー様へ自信を持っておすすめできる一棟マンションです。現在、全12戸が満室稼働中!想定年間収入11,724,000円、表面利回り7.82%と、大変魅力的な収益性が期待できます。 鉄筋コンクリート造のしっかりとした建物は、2021年1月に増圧給水切替や屋上防水などの大規模なリフォームを実施済みで、これからも長く安心してお持ちいただけます。全室2DK、人気のバス・トイレ別で、TVモニタ付インターフォンや敷地内ゴミ置き場など、入居者様にとって嬉しい設備も充実しています。 周辺にはコンビニやスーパー、ドラッグストア、ショッピングセンターが徒歩数分圏内に揃い、日々の暮らしに大変便利な環境です。南向きで明るいお部屋は、快適な毎日をサポートします。オーナー様にとって、安定収入と資産価値を兼ね備えた、まさに理想的な一棟です。ぜひこの機会にご検討ください。
| 価格 |
1億4,980万円
利回り7.82%
満室時想定年収:1,172万4,000円
|
|---|---|
| 住所 | 東京都調布市深大寺東町2-8-1 |
| 交通 | つつじヶ丘駅(徒歩22分)道順を見る |
| 築年月 | 築37年(1988年5月) |
| 構造 | 鉄筋コンクリート(RC)造 |
| 面積 | 建物:546m² (165.16坪)/ 土地:280.5m² (84.85坪)(公簿) |
| 現況 | 現在満室(総戸数12戸中 12戸賃貸中) |
【WEB面談可】
販売状況、見学、詳細を知りたい方はこちら!
お電話の際は「連合隊の物件」とお伝えください。
新着 情報掲載期限:あと30日(更新日 2026/1/23)
- 物件写真・概要
- 周辺地図
-
【WEB面談可】
販売状況、見学、詳細を知りたい方はこちら!おすすめポイント
- 現在満室
交通色がついているアイコンをクリックすると、本物件までの道順を見ることができます。
物件概要
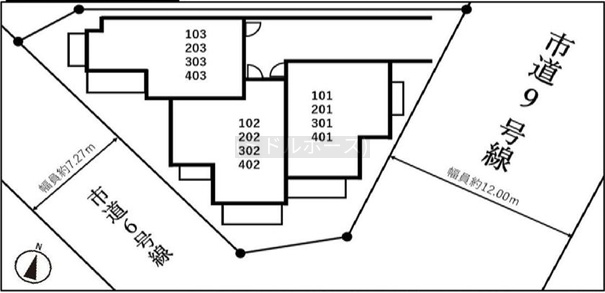
建物の階建 地上4階建 間取り 2DK×12戸 駐車場 接道状況 - 東側幅12.00mの公道に接道
- 西側幅7.27mの公道に接道
都市計画区域 市街化区域 用途地域 - 第2種中高層住居専用地域(建ぺい率:60% / 容積率:200%)
- 第1種中高層住居専用地域(建ぺい率:60% / 容積率:200%)
私道負担 なし 地目/地勢 宅地 地勢:平坦 国土法届出 不要 土地権利 所有権 引渡し 相談 取引態様 仲介 物件No 仲介手数料概算 不動産会社へお問合せください 修繕履歴 - 2021年1月頃に部分的にリフォームしています。施工内容:増圧給水切替工事
- 2021年1月頃に部分的にリフォームしています。施工内容:屋上防水改修工事
- 2021年1月頃に部分的にリフォームしています。施工内容:共有部証明器具交換工事
設備・特徴 - バス/トイレ別
備考 TVモニタ付インターフォン、敷地内ゴミ置き場あり 主な周辺施設色がついているアイコンをクリックすると、本物件までの道順を見ることができます。
-
ホームページはこちら
東京都知事(1) 第111484号
(株)ミドルホース 【WEB面談可】- 加入団体
- (公社)東京都宅地建物取引業協会、(公社)全日本不動産協会
- 保証協会
- (公社)不動産保証協会
- 公正取引協議会
- (公社)首都圏不動産公正取引協議会
※連合隊は物件情報の精度向上に努めています:「物件情報に誤りがある」「成約済みである」などお気付きの点がございましたらこちらよりご連絡ください。
写真枚数:6枚
株式会社ミドルホースは、リースバックを中心に、お客様の生活再建を支える不動産サービスを提供しています。
株式会社ミドルホースは、リースバックを中心に、お客様の生活再建を支える不動産サービスを提供しています。少数精鋭による迅速な対応と柔軟な提案力で、どんな状況でも最適な解決策を導きます。全国対応で、安心と信頼を第一にサポートいたします。経験豊富なスタッフが一件一件丁寧に対応し、お客様の「これからの暮らし」を共に考え、最善の道をともに歩みます。