川崎市のオーナーチェンジ物件!JR南武線武蔵中原駅【徒歩10分】
| 価格 |
2,480万円
利回り4.4%
満室時想定年収:109万2,000円
管理費1万1,400円/月修繕積立金1,600円/月
|
|---|---|
| 住所 |
神奈川県川崎市中原区下新城1丁目
(詳細な所在地は不動産会社にお問合せください) |
| 交通 | 武蔵中原駅(徒歩10分) |
| 築年月 | 築6年(2020年3月) |
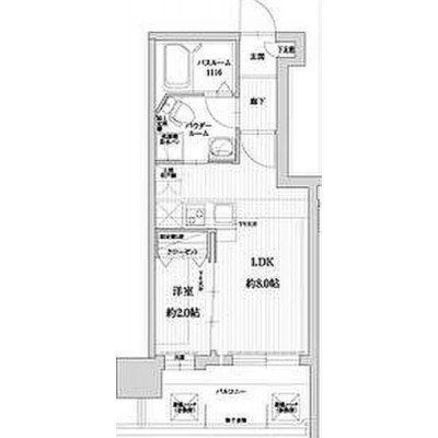
| 間取・専有 |
1K(25.35m²)
|
| 所在階 | 4階 / 地上5階建 |
| 現況 | 賃貸中 |
【WEB面談可】
販売状況、見学、詳細を知りたい方はこちら!
お電話の際は「連合隊の物件」とお伝えください。
新着 情報掲載期限:あと29日(更新日 2026/4/30)
- 物件写真・概要
- 周辺地図
-
【WEB面談可】
販売状況、見学、詳細を知りたい方はこちら!おすすめポイント
- 賃貸中
- 築10年以内
- バス/トイレ別
- 2階以上
交通
- 武蔵中原駅JR南武線徒歩10分
物件概要
土地権利 所有権 主要採光面 構造 鉄筋コンクリート(RC)造 駐車場 バルコニー あり(4.48m²)管理形態 管理組合 指定なし 引渡し 相談 管理人 取引態様 仲介 物件No 13814 仲介手数料概算 不動産会社へお問合せください 設備・特徴 - バス/トイレ別
備考 収益物件 -
ホームページはこちら
東京都知事(1) 第109590号
(株)クレストリッチ 【WEB面談可】
※連合隊は物件情報の精度向上に努めています:「物件情報に誤りがある」「成約済みである」などお気付きの点がございましたらこちらよりご連絡ください。
写真枚数:3枚
弊社の物件情報は、売主様から直接お預かりしている物件から競売物件・任売物件まで、 独自の方法で物件集め、ワンルームマンションの投資物件情報を掲載しております!
弊社の物件情報は、節税目的や保険代わり、将来の年金対策として、長期に当たって収益の見込める主要都市の好立地物件に限定しております。 東京、横浜、名古屋、大阪、京都、神戸、福岡のワンルームマンション!! 個別のご相談ももちろん可能です。他社よりもお安く、好立地の物件をご提案いたします。 また、ご購入後のマンション管理や確定申告のアドバイスも行っております。 お気軽にご相談ください!!