区分マンション|投資

エステムコート梅田・天神橋IIIアヴァンテ

ここに注目!静かな暮らしでリフレッシュできる。そんなエリアにある大阪府大阪市北区長柄東3丁目の中古マンションはいかがでしょうか。2路線利用可能で、移動の選択肢が広がります。収納スペースも充実した、機能的で暮らしやすい1Kの間取りが魅力です。好評の駅近物件となっており、駅より徒歩14分に立地しています。 クレストリッチだけの【プレミアム安心サポート!】 \お問い合わせから30日間のご案内!/ 空室やトラブルも怖くない、オーナー様の強い味方です! ▼プラン内容はこちら 〇購入から100日以内に退去があった場合、次の入居まで原状回復工事費用&家賃100%保証 〇 空室が続いた場合も、4ヶ月後から入居前日まで家賃の80%を保証 〇 滞納時も家賃100%保証(当社管理期間中) 〇 エアコンの修理1回・交換1台分の費用を当社が負担! 〇実質負担額0円!※加入金1万円となりますが諸条件を満たしていただく事で返金の対象となります。 本プランは弊社独自のプランとなりますので 詳細について興味がありましたら、お気軽にお問合せください!

価格
1,500 利回り4.7%
満室時想定年収:70万5,840円
管理費5,900円/月修繕積立金3,000円/月
住所 大阪府大阪市北区長柄東3丁目
(詳細な所在地は不動産会社にお問合せください)
交通 天神橋筋六丁目駅(徒歩14分)
築年月 築11年(2014年1月)
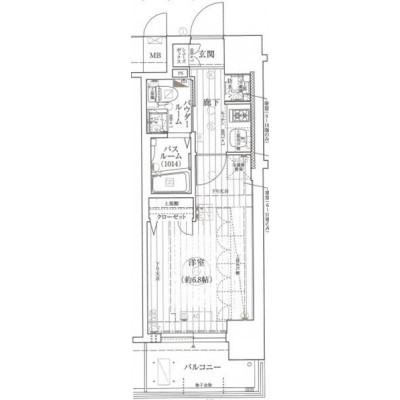
間取・専有
1K(21.51m²)
所在階 5階 / 地上10階建
現況 賃貸中

【WEB面談可】
販売状況、見学、詳細を知りたい方はこちら!

お電話の際は「連合隊の物件」とお伝えください。

03-6273-1850

情報掲載期限:あと22日(更新日 2025/12/7)

  • 物件写真・概要
  • 周辺地図

※連合隊は物件情報の精度向上に努めています:「物件情報に誤りがある」「成約済みである」などお気付きの点がございましたらこちらよりご連絡ください。

写真枚数:4枚

閉じる

拡大

拡大

拡大

拡大

物件情報トップへ