岡山県備前市 戸建 p-2108
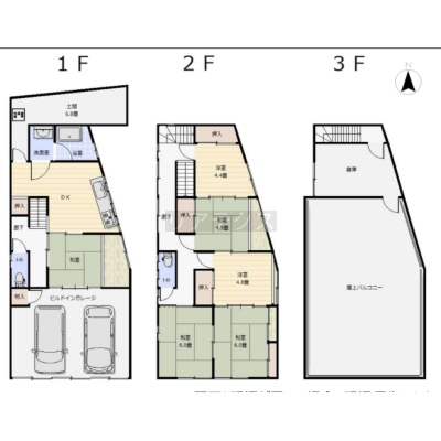
ここに注目!現況利回り20%のオーナーチェンジ戸建! 賃貸募集不要で、購入後すぐに家賃収入が入ります! 頑丈な鉄骨造。ゆとりある6DKの間取りに、屋上に広いルーフバルコニーと倉庫付き! 雨や汚れから守れるビルトインガレージに車2台収納可能! 最寄り駅まで徒歩1分。将来的な再募集時や売却時にも大きなアドバンテージとなります。 雨漏り履歴あり。(修繕済み) 三石450‐3地内に井戸あり。
| 価格 |
228万円
利回り20%
満室時想定年収:45万6,000円
|
|---|---|
| 住所 | 岡山県備前市三石453 |
| 交通 | 三石駅(徒歩1分)道順を見る |
| 築年月 | 築59年(1966年12月) |
| 構造 | 鉄骨造 |
| 面積 | 建物:174.9m² (52.9坪)/ 土地:114.1m² (34.51坪)(公簿) |
| 現況 | 賃貸中 |
販売状況、見学、詳細を知りたい方はこちら!
お電話の際は「連合隊の物件」とお伝えください。
情報掲載期限:あと12日(更新日 2026/2/17)
- 物件写真・概要
- 周辺地図
-
販売状況、見学、詳細を知りたい方はこちら!
おすすめポイント
- 賃貸中
- 利回り19%超
- 駐車2台以上可
- 駅徒歩1分以内
交通色がついているアイコンをクリックすると、本物件までの道順を見ることができます。
物件概要
建物の階建 地上3階建 構造 鉄骨造 間取り 6DK 駐車場 あり 駐車場台数:2台バルコニー あり- ルーフバルコニー
接道状況 一方 - 南側幅6.00mの公道に7.00m接道
都市計画区域 市街化区域 用途地域 - 近隣商業地域(建ぺい率:80% / 容積率:200%)
私道負担 地目/地勢 宅地 国土法届出 土地権利 所有権 引渡し 相談 取引態様 仲介 物件No 仲介手数料概算 不動産会社へお問合せください 修繕履歴 - 2004年1月頃に部分的にリフォームしています。施工内容:屋上防水工事、エアコンドレン配管工事、カーポート軒裏修繕
設備・特徴 備考 主な周辺施設色がついているアイコンをクリックすると、本物件までの道順を見ることができます。
-
ホームページはこちら東京都知事(1) 第107888号
(株)リアテクス
※連合隊は物件情報の精度向上に努めています:「物件情報に誤りがある」「成約済みである」などお気付きの点がございましたらこちらよりご連絡ください。
写真枚数:25枚
三石駅
三石郵便局
三石診療所
日本キリスト教団三石教会