鳥取大通5丁目 事務所
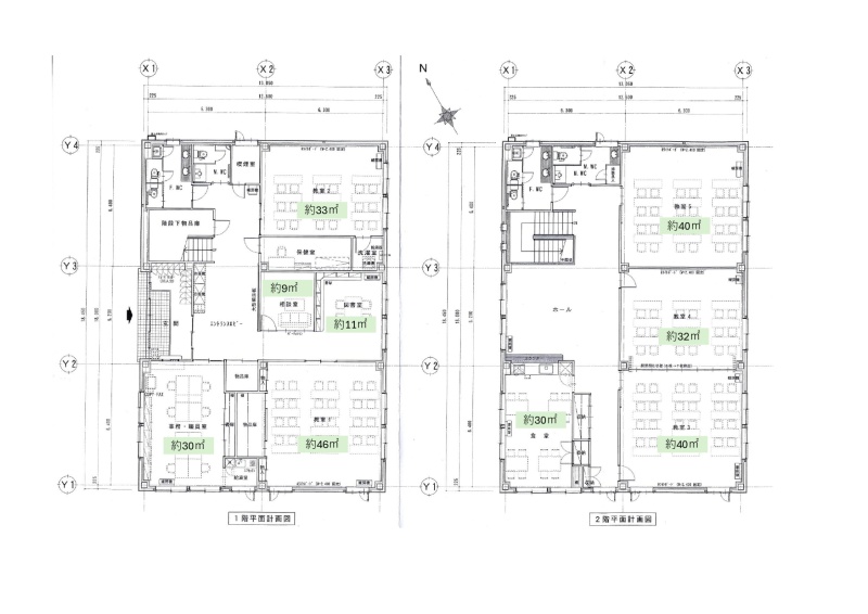
ここに注目!北海道釧路市鳥取大通の、広々とした鉄骨造2階建ての事務所(一棟)をご紹介いたします! くしろバス「鳥取大通5丁目」停まで徒歩3分とアクセス良好で、通勤にも大変便利。延床面積は479.64㎡とゆとりのある空間で、2階の2室(教室3・4)は移動式間仕切りで仕切られており、大会議室の確保が可能です。企業様の事務所として利用するほかにも改装により介護事業所、放課後等デイサービス、合宿所、学習施設などご購入者様のアイデア次第で多様なビジネスニーズに対応可能な物件です。 さらに、14台分の駐車場を完備しており、お客様や従業員様の車でのアクセスもスムーズです。冬の北海道でも快適に過ごせる灯油暖房や男女別トイレ、図書室、喫煙室、食堂が整っていますので従業員様のモチベーションアップに寄与できる物件です。幹線道路(国道38号線)の近隣に位置しているため視認性も高く、ビジネスチャンスを広げるのに最適です。 周辺には金融機関やドラッグストア、コンビニ、ショッピングセンターが徒歩圏内に揃い、日々の業務にも困りません。新しい事業の拠点として、この快適な環境でスタートしてみませんか?ぜひ一度ご検討ください。
| 価格 |
6,000万円
|
|---|---|
| 建物面積 | 479.64m² (145.09坪) |
| 土地面積 | 569m² (172.12坪)(公簿) |
| 住所 | 北海道釧路市鳥取大通5-2-7 |
| 交通 | 新富士駅(徒歩22分)|釧路駅(徒歩59分)|くしろバス 「鳥取大通5丁目」停(徒歩3分)道順を見る |
| 築年月 | 築19年(2006年9月) |
| 駐車場 |
あり 駐車可能台数:14台
|
| 用途地域 |
|
【WEB面談可】
販売状況、見学、詳細を知りたい方はこちら!
お電話の際は「連合隊の物件」とお伝えください。
情報掲載期限:あと25日(更新日 2026/4/25)
- 物件写真・概要
- 周辺地図
-
▼クリックで左の拡大画像が変わります。 すべての写真を拡大
【WEB面談可】
販売状況、見学、詳細を知りたい方はこちら!おすすめポイント
- 即引渡し可
- 駐車2台以上可
- 男女別トイレ
交通色がついているアイコンをクリックすると、本物件までの道順を見ることができます。
- 新富士駅JR根室本線徒歩22分(約1.8km)
- 釧路駅花咲線、JR釧網本線、JR根室本線徒歩59分(約4.8km)
- くしろバス 「鳥取大通5丁目」停徒歩3分(約200m)
物件概要
建物の階建 地上2階建 総戸数 主要採光面 南 構造 鉄骨造 接道状況 二方(除角地) - 南側幅11.00mの公道に15.00m接道
- 西側幅11.00mの公道に12.50m接道
都市計画区域 市街化区域 私道負担 なし 地目/地勢 雑種地 地勢:平坦 国土法届出 不要 土地権利 所有権 用途地域 - 第1種住居地域(建ぺい率:60% / 容積率:200%)
引渡し 即時 現況 空き 取引態様 仲介 物件No 006 仲介手数料概算 204万6,000円(金額は概算です。正確な金額は不動産会社へお問合せ下さい) 修繕履歴 - 2018年1月頃に物件全体を部分的にリフォームしています。施工内容:一部間取り変更に伴う改修
設備・特徴 - 幹線道路沿い
- 給排水設備
- 灯油暖房
- 男女別トイレ(共用部)
- 男女別トイレ
備考 主な周辺施設色がついているアイコンをクリックすると、本物件までの道順を見ることができます。
-
北海道知事 釧路(1) 第573号
ヴィレッジバリュー(株) 【WEB面談可】- 加入団体
- (公社)北海道宅地建物取引業協会
- 保証協会
- (公社)全国宅地建物取引業保証協会
- 公正取引協議会
- (一社)北海道不動産公正取引協議会
※連合隊は物件情報の精度向上に努めています:「物件情報に誤りがある」「成約済みである」などお気付きの点がございましたらこちらよりご連絡ください。
写真枚数:26枚
西側駐車場:8台分
間取りは現況を優先いたします
外観(南面)南側駐車場:6台分
玄関
1階 エントランスロビー
2階 ホール
1階 事務・職員室
1階 給湯室
1階 相談室
1階 図書室
1階 教室1
1階 教室2
1階 保健室
1階 喫煙室
1階 男子トイレ
1階 女子トイレ
1階 階段室・階段下物品庫
1階/2階 階段室
2階 教室3
2階 教室4
2階 教室3・4
2階 教室5
2階 食堂
2階 食堂内キッチン
1階 女子トイレ手洗い場
西側駐車場(8台)
ワンストップ対応でお客様のご要望にお応えします!
はじめまして。弊社ページをご覧いただきありがとうございます。令和7年9月、釧路市にて不動産売買・仲介業、自動車販売業、コンサルティング業、損害保険代理業として創業いたしました。金融機関に28年勤務した代表の経験を活かし、物件選びから住宅ローン・融資のご提案、火災保険のご相談まで「ワンストップ」でお客様のご要望に全力でお応えいたします。営業時間外の対応も可能です。どうぞお気軽にお問い合わせください。