ザ・パークハウス藤崎紅葉山
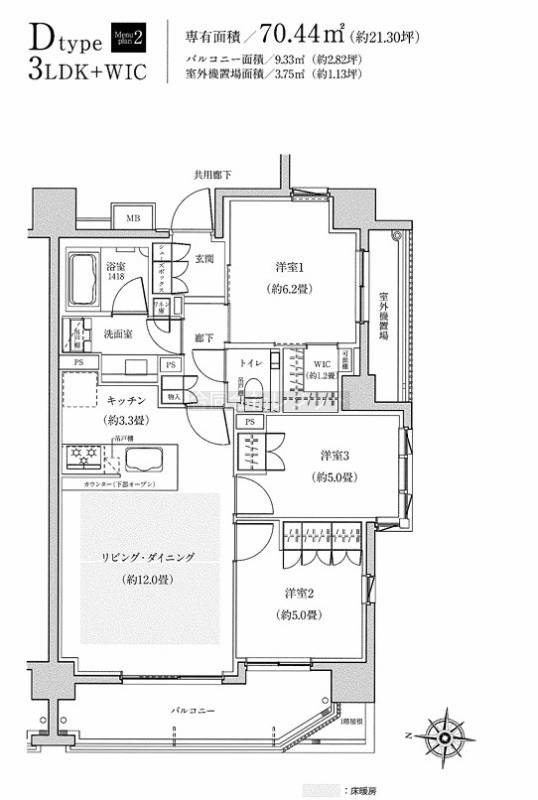
ここに注目!「ザ・パークハウス藤崎紅葉山」より、築浅の上層7階角住戸をご紹介します! 福岡市営地下鉄空港線「藤崎」駅まで徒歩10分で、都心へのアクセスも快適な立地です。 専有面積70.44㎡の3SLDKは、LDK約12畳と対面キッチンが連続し、ご家族との会話が弾む開放的な空間。主寝室6.2畳、全室5畳以上を確保したゆとりある設計が魅力です。二面採光と広々としたバルコニーからは、明るく心地よい光が差し込みます。 ウォークインクローゼットやシューズインクローゼットなど収納も充実。追い焚き機能付きバスや3口以上のコンロを備えたキッチンなど、日々の暮らしをサポートする設備も整っています。 福岡市立高取小学校へは徒歩4分。スーパーやドラッグストアも近く、生活利便施設が身近に揃う住環境です。 人気の「ザ・パークハウス」シリーズで、新しい生活を始めてみませんか?ぜひ現地でご体感ください。お問い合わせをお待ちしております。
| 価格 |
7,050万円
坪単価:約331.0万円/坪
管理費1万3,880円/月修繕積立金8,480円/月
|
|---|---|
| 間取・専有 |
3SLDK(70.44m²)└ LDK
|
| 住所 | 福岡県福岡市早良区昭代3-4-8 |
| 交通 | 藤崎駅(徒歩10分)|西新駅(徒歩17分)|室見駅(徒歩20分)|別府駅(徒歩26分)|茶山駅(徒歩31分)道順を見る |
| 築年月 | 築4年(2021年12月) |
| 駐車場 |
あり (1万1,000円/台) 駐車可能台数:1台
|
販売状況、見学、詳細を知りたい方はこちら!
お電話の際は「連合隊の物件」とお伝えください。
情報掲載期限:あと16日(更新日 2025/11/23)
- 物件写真・概要
- 周辺地図
-
販売状況、見学、詳細を知りたい方はこちら!
おすすめポイント
- 築5年以内
- 駐車場あり
- 都市ガス
- 角部屋
- 追い焚き風呂
- 2階以上
- ペット相談可
- オートロック
- エレベーター
- 近くて便利!徒歩5分以内にある施設
- 5分
5分- 4分
4分- 5分
5分- 4分
4分- 周辺施設を地図で確認
交通色がついているアイコンをクリックすると、本物件までの道順を見ることができます。
- 藤崎駅福岡市営地下鉄空港線徒歩10分(約727m)
- 西新駅福岡市営地下鉄空港線徒歩17分(約1.4km)
- 室見駅福岡市営地下鉄空港線徒歩20分(約1.6km)
- 別府駅福岡市営地下鉄七隈線徒歩26分(約2.1km)
- 茶山駅福岡市営地下鉄七隈線徒歩31分(約2.5km)
物件概要
所在階/建物の階建 7階 / 地上8階建 総戸数 48戸 主要採光面 構造 鉄筋コンクリート(RC)造 バルコニー あり土地権利 所有権 その他費用 その他 - インターネット使用料:1,705円
引渡し 引渡し予定:2026年1月上旬 現況 入居中(所有者居住中) 管理人 巡回 管理形態 全部委託 管理組合 有 取引態様 仲介 物件No 仲介手数料概算 239万2,500円(金額は概算です。正確な金額は不動産会社へお問合せ下さい) 設備・特徴 - コンロ3口以上
- カウンターキッチン
- エレベーター
- ウォークインクローゼット
- シューズインクローゼット
- 追い焚き風呂
- 都市ガス
- 日当り良好
- タイル貼り
- 電動シャッター
- 屋内駐車場
- バイク置き場
- デザイナーズ
- 角部屋
- フローリング
- オートロック
- モニタ付インターホン
- 防犯カメラ
- ペット相談可
備考 ザ・パークハウス藤崎紅葉山、上層7階角住戸。専有70.44㎡・3LDK+WIC。効率的な動線でLD約12畳と対面キッチンが連続し、家族の会話が弾む設計。主寝室6.2畳、全室5畳以上。二面採光・広々バルコニーで明るく開放的。収納豊富で私邸性も高く、多用途に使える柔軟な間取りが魅力。 学区色がついているアイコンをクリックすると、本物件までの道順を見ることができます。
主な周辺施設色がついているアイコンをクリックすると、本物件までの道順を見ることができます。
-
ホームページはこちら福岡県知事 (2) 第18894号
(同)レジット
※連合隊は物件情報の精度向上に努めています:「物件情報に誤りがある」「成約済みである」などお気付きの点がございましたらこちらよりご連絡ください。
写真枚数:7枚