ロマネスク西新第二
ここに注目!福岡市早良区城西に位置する「ロマネスク西新第二」をご紹介します! 福岡市営地下鉄空港線「西新駅」まで徒歩8分!天神や博多、福岡空港へのアクセスもスムーズで、日々の通勤・通学に便利な立地が魅力です。 周辺にはコンビニ、銀行、保育園なども揃っており、生活利便性も整っています。 本物件は現況賃貸中のオーナーチェンジ物件。ご購入後すぐに家賃収入が期待でき、表面利回り6.7%と収益性にも期待が持てます。家賃保証の設備も備わっており、賃貸経営を検討されている方に心強いポイントとなるでしょう。 福岡の活気ある西新エリアで、賢い資産形成を始めてみませんか?詳細について、ぜひお気軽にお問い合わせください。
| 価格 |
555万円
利回り6.7%
満室時想定年収:37万2,000円
管理費4,400円/月修繕積立金5,300円/月
|
|---|---|
| 住所 | 福岡県福岡市早良区城西3-13-16 |
| 交通 | 西新駅(徒歩8分)|藤崎駅(徒歩16分)|別府駅(徒歩19分)|唐人町駅(徒歩23分)|六本松駅(徒歩25分)道順を見る |
| 築年月 | 築36年(1989年10月) |
| 間取・専有 |
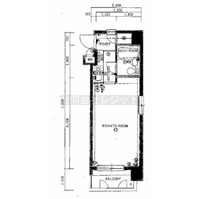
ワンルーム(21.09m²)
|
| 所在階 | 3階(304) / 地上12階建 |
| 現況 | 賃貸中 |
販売状況、見学、詳細を知りたい方はこちら!
お電話の際は「連合隊の物件」とお伝えください。
情報掲載期限:あと10日(更新日 2025/11/23)
- 物件写真・概要
- 周辺地図
-
販売状況、見学、詳細を知りたい方はこちら!
おすすめポイント
- 賃貸中
- 家賃保証
- 2階以上
- 駐車場あり
交通色がついているアイコンをクリックすると、本物件までの道順を見ることができます。
- 西新駅福岡市営地下鉄空港線徒歩8分(約591m)
- 藤崎駅福岡市営地下鉄空港線徒歩16分(約1.3km)
- 別府駅福岡市営地下鉄七隈線徒歩19分(約1.5km)
- 唐人町駅福岡市営地下鉄空港線徒歩23分(約1.9km)
- 六本松駅福岡市営地下鉄七隈線徒歩25分(約2km)
物件概要
土地権利 所有権 主要採光面 構造 鉄骨鉄筋コンクリート(SRC)造 駐車場 あり 駐車場台数:0台管理形態 全部委託 管理組合 指定なし 引渡し 相談 管理人 巡回 取引態様 仲介 物件No 仲介手数料概算 不動産会社へお問合せください 設備・特徴 - 家賃保証
備考 主な周辺施設色がついているアイコンをクリックすると、本物件までの道順を見ることができます。
-
ホームページはこちら福岡県知事 (2) 第18894号
(同)レジット
※連合隊は物件情報の精度向上に努めています:「物件情報に誤りがある」「成約済みである」などお気付きの点がございましたらこちらよりご連絡ください。
写真枚数:6枚