ネオハイツ舞鶴ノール
ここに注目!福岡市中央区長浜の好立地に「ネオハイツ舞鶴ノール」が登場! 福岡市営地下鉄空港線「赤坂」駅まで徒歩6分という、通勤・通学に嬉しいアクセスです。天神エリアも徒歩圏内で、都市生活を存分に満喫できます。 周辺にはコンビニやドラッグストアはもちろん、飲食店や銀行、郵便局など生活に役立つ施設が徒歩数分圏内に充実しており、暮らしやすさも大きな魅力。 お部屋は1DK、専有面積26.69㎡。現在賃貸中のオーナーチェンジ物件で、年間収入69.6万円、表面利回り7.03%と、魅力的な収益も期待できます。 住まいとしても、投資用としてもご検討いただける一室。 福岡都心で利便性と将来性を兼ね備えた物件をお探しの方に。 この機会にぜひ、お気軽にお問い合わせください。
| 価格 |
990万円
利回り7.03%
満室時想定年収:69万6,000円
管理費5,200円/月修繕積立金4,000円/月
|
|---|---|
| 住所 | 福岡県福岡市中央区長浜2-3-1 |
| 交通 | 赤坂駅(徒歩6分)|大濠公園駅(徒歩15分)|天神駅(徒歩16分)|西鉄福岡(天神)駅(徒歩19分)道順を見る |
| 築年月 | 築38年(1987年9月) |
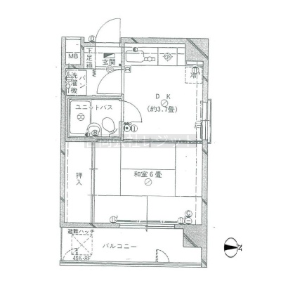
| 間取・専有 |
1DK(26.69m²)
|
| 所在階 | 6階(601) / 地上11階建 |
| 現況 | 賃貸中 |
販売状況、見学、詳細を知りたい方はこちら!
お電話の際は「連合隊の物件」とお伝えください。
情報掲載期限:あと10日(更新日 2025/11/23)
- 物件写真・概要
- 周辺地図
-
販売状況、見学、詳細を知りたい方はこちら!
おすすめポイント
- 賃貸中
- 家賃保証
- エレベーター
- 2階以上
- 駐車場あり
交通色がついているアイコンをクリックすると、本物件までの道順を見ることができます。
- 赤坂駅福岡市営地下鉄空港線徒歩6分(約465m)
- 大濠公園駅福岡市営地下鉄空港線徒歩15分(約1.2km)
- 天神駅福岡市営地下鉄空港線徒歩16分(約1.3km)
- 西鉄福岡(天神)駅西鉄天神大牟田線徒歩19分(約1.5km)
物件概要
土地権利 所有権 主要採光面 構造 鉄骨鉄筋コンクリート(SRC)造 駐車場 あり 駐車場台数:0台管理形態 全部委託 管理組合 指定なし 引渡し 相談 管理人 巡回 取引態様 仲介 物件No 仲介手数料概算 不動産会社へお問合せください 設備・特徴 - 家賃保証
- エレベーター
備考 主な周辺施設色がついているアイコンをクリックすると、本物件までの道順を見ることができます。
-
ホームページはこちら福岡県知事 (2) 第18894号
(同)レジット
※連合隊は物件情報の精度向上に努めています:「物件情報に誤りがある」「成約済みである」などお気付きの点がございましたらこちらよりご連絡ください。
写真枚数:6枚