グレイス博多井尻
ここに注目!西鉄天神大牟田線「井尻」駅まで徒歩9分!アクセス良好な【グレイス博多井尻】が登場です。 価格298万円、想定利回り8.85%と、魅力ある投資物件としてご検討いただけます。現在は賃貸中で、購入後すぐに家賃収入が期待できるオーナーチェンジ物件です。 1Kの間取りは、単身の方に需要があり、安定した入居が期待できます。日々の安心を支えるオートロック、移動に便利なエレベーターを完備。快適なマンションライフをサポートします。 周辺には、徒歩4分圏内にコンビニが複数あり、急なお買い物にも便利。徒歩8分にはスーパー「ハローデイ」があり、日々の食料品調達にも困りません。金融機関やショッピングセンターも近く、生活利便性が整った環境です。 都市へのアクセスと生活のしやすさを兼ね備えた、福岡市南区横手のマンション。 この機会に、ぜひご検討ください。ご興味をお持ちの方はお気軽にお問い合わせください。
| 価格 |
330万円
利回り8.48%
満室時想定年収:28万円
管理費3,500円/月修繕積立金6,000円/月
|
|---|---|
| 住所 | 福岡県福岡市南区横手2-31-10 |
| 交通 | 井尻駅(徒歩9分)|笹原駅(徒歩22分)道順を見る |
| 築年月 | 築36年(1989年3月) |
| 間取・専有 |
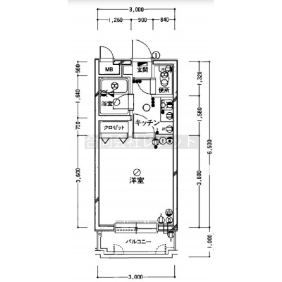
1K(19.5m²)
|
| 所在階 | 1階(109) / 地上4階建 |
| 現況 | 賃貸中 |
販売状況、見学、詳細を知りたい方はこちら!
お電話の際は「連合隊の物件」とお伝えください。
情報掲載期限:あと26日(更新日 2025/12/10)
- 物件写真・概要
- 周辺地図
-
販売状況、見学、詳細を知りたい方はこちら!
おすすめポイント
- 賃貸中
- 家賃保証
- オートロック
- エレベーター
交通色がついているアイコンをクリックすると、本物件までの道順を見ることができます。
物件概要
土地権利 所有権 主要採光面 構造 鉄筋コンクリート(RC)造 駐車場 なし管理形態 全部委託 管理組合 指定なし 引渡し 相談 管理人 巡回 取引態様 仲介 物件No 仲介手数料概算 不動産会社へお問合せください 設備・特徴 - 家賃保証
- エレベーター
- オートロック
備考 月額22,000円にて賃貸中。2025年12月より24,000円へ変更予定。 お手頃な投資マンション 相場家賃が30,000~35,000円 収益UPも見込める可能性があります。 融資もご相談ください。 詳細はこちら迄 092-707-3128 担当 柴田 主な周辺施設色がついているアイコンをクリックすると、本物件までの道順を見ることができます。
-
ホームページはこちら福岡県知事 (2) 第18894号
(同)レジット
※連合隊は物件情報の精度向上に努めています:「物件情報に誤りがある」「成約済みである」などお気付きの点がございましたらこちらよりご連絡ください。
写真枚数:11枚