【現在簡易宿所として営業中】小樽市稲穂1丁目 売事務所
ここに注目!●小樽駅から徒歩6分 南小樽駅まで徒歩19分 ●5階建 地下1階の事務所ビル ●現在は簡易宿所として運営中! ●国道5号線に面し、アクセス良好です。 ●隣は現在レンタカー会社となっています。 ●直近売上平均での年間予定収入3752万円 表面利回り約28.42% 随時要確認 ●簡易宿所としての引継ぎが可能です。ご相談ください。 ☆詳細はお気軽にお問合せください☆ ■現地集合・現地解散可能■ 【お電話はこちら】→011-600-0253 公式LINEからもお問合せが可能です! 【LINE ID】@twinkle001
| 価格 |
1億3,200万円
利回り28.42%
満室時想定年収:3,752万円
|
|---|---|
| 住所 | 北海道小樽市稲穂1-8-6 |
| 交通 | 小樽駅(徒歩5分)|南小樽駅(徒歩19分)道順を見る |
| 築年月 | 築34年(1991年1月) |
| 構造 | 鉄筋コンクリート(RC)造 |
| 面積 | 建物:757.79m² (229.23坪)/ 土地:219.99m² (66.54坪)(公簿) |
| 現況 |
販売状況、見学、詳細を知りたい方はこちら!
お電話の際は「連合隊の物件」とお伝えください。
新着 情報掲載期限:あと27日(更新日 2025/12/17)
- 物件写真・概要
- 周辺地図
-
▼クリックで左の拡大画像が変わります。 すべての写真を拡大
販売状況、見学、詳細を知りたい方はこちら!
おすすめポイント
- 利回り28%超
- 駅徒歩5分以内
- 大学・専門近く
交通色がついているアイコンをクリックすると、本物件までの道順を見ることができます。
物件概要
建物の階建 地上5階 地下1階建 間取り その他×4戸 駐車場 地下に駐車スペースあり。現在未使用のためメンテナンスが必要な場合があります。
接道状況 一方 - 南西側幅22.00mの公道に10.00m接道
都市計画区域 市街化区域 用途地域 - 商業地域(建ぺい率:80% / 容積率:600%)
私道負担 地目/地勢 宅地 国土法届出 土地権利 所有権 その他費用 その他 - 令和7年度固定資産税等約:186万5,000円
引渡し 相談 取引態様 仲介 物件No 仲介手数料概算 442万2,000円(金額は概算です。正確な金額は不動産会社へお問合せ下さい) 設備・特徴 - 大学・専門近く
備考 ■現状渡し■境界非明示(公募売買)■契約不適合責任免責■間取りは現地を優先します■平成30年10月頃 用途を簡易宿所とした確認済証有■登記簿上 事務所 ■2025年1月~2025年9月までの9か月間の売り上げ平均から算出した年間予定収入 3,752万円 表面利回り28.42% 随時要確認■簡易宿泊所としての引継ぎ可 ご相談ください■駐車スペース地下にあり 現在未使用のため整備が必要な可能性あり 主な周辺施設色がついているアイコンをクリックすると、本物件までの道順を見ることができます。
-
ホームページはこちら
北海道知事 石狩(1) 第9640号
ツインクル(株)- 加入団体
- (公社)北海道宅地建物取引業協会
- 保証協会
- (公社)不動産保証協会
- 公正取引協議会
- (一社)北海道不動産公正取引協議会
※連合隊は物件情報の精度向上に努めています:「物件情報に誤りがある」「成約済みである」などお気付きの点がございましたらこちらよりご連絡ください。
写真枚数:5枚
現在簡易宿泊所として運営中の事務所ビル!予定年収3752万円 簡易宿泊所の運営は引継ぎ可能 ご相談ください!
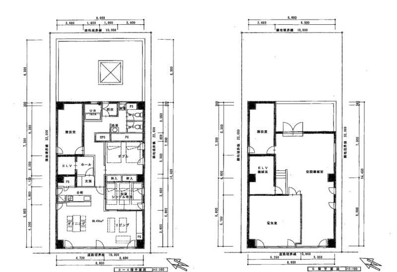
2~4階平面図・5階平面図
JR小樽駅まで徒歩6分の好立地!近隣商業施設や観光地が徒歩圏内 利便性良好です!
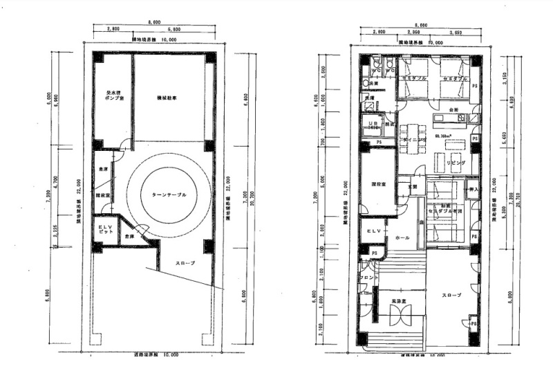
地下1階平面図
お問合せは公式LINEが便利です!お気軽にお問合せください☆
札幌・小樽・余市エリアはツインクル株式会社☆ベテランの担当がいますので、安心してお任せいただけます!