【家具・EVコンセントプレゼント!】芽室建売⑥【太陽光パネル付】
ここに注目!【ただいま決算キャンペーン中!期間中にご契約いただくと、家具、EVコンセントをプレゼント】 ★今までとは違うカタチのオール電化住宅。かしこい仕様のエコキュートは翌日の天気予報をインターネットで取得!電力の自家消費を促進します。発電した電気は売る、より、使う!の時代です。 ★ソーラーパネル搭載で《光熱費が年間 ”140,000円” おトクに!》★全方位トリプルサッシ★小学校目の前★住宅ローン、資金計画等もご相談ください。自社サイトも物件情報の掲載をしていますので、ぜひご覧ください。土地や中古物件の買取・仲介も総合設計にお任せ。まずはお気軽にお問い合わせください!
この物件は、仲介手数料がかかりません。
この物件の売主は、情報を掲載している不動産会社です。仲介物件ではないため、仲介手数料は発生しません。
| 価格 |
2,980万円
|
|---|---|
| 建物面積 | 95.23m² (28.8坪) |
| 土地面積 | 212.98m² (64.42坪)(公簿) |
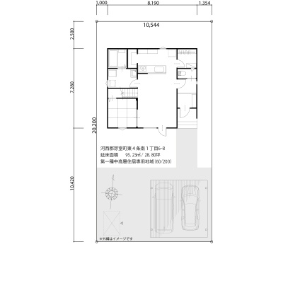
| 間取り | 4LDK1階:LDK16帖 和室4.5帖 / 2階:洋室6帖 洋室5.5帖 洋室5.5帖 |
| 住所 | 北海道河西郡芽室町東四条南1-6 |
| 交通 | 芽室駅(徒歩11分)|十勝バス 「公立芽室病院前」停(徒歩7分)道順を見る |
| 築年月 | 新築(2026年3月) |
| 駐車場 |
あり 駐車可能台数:3台
|
【WEB面談可】
販売状況、見学、詳細を知りたい方はこちら!
お電話の際は「連合隊の物件」とお伝えください。
情報掲載期限:あと20日(更新日 2026/3/5)
- 物件写真・概要
- 周辺地図
-
▼クリックで左の拡大画像が変わります。 すべての写真を拡大
-
【日当たり充実】 南道路で日当たり良好 リビングにいながら、校庭の緑景を取り込む贅沢な眺め ※イメージ
-
1階間取り
-
2階間取り
-
配置図
-
内観 CG
-
【お手入れ簡単ホーロー収納】 パネルはマグネット製品仕様できます ※イメージCG
-
お手入れカンタンレンジフード ※イメージ
-
【ゴトクがないから】 お掃除らくらくIH ※イメージ
-
【時短と言えば】 食洗機洗い乾燥機ですね
-
【汚れた手でも】 触らずクリーン 節水でも強い味方
-
【いつまでもクリーンなUB】 が楽しい浴室 ※イメージCG
-
【水アカが付きにくい】 ハイバックカウンター ※イメージCG
-
【水アカが付きにくい】 ハイバックカウンター ※イメージCG
-
【安心の冷暖エアコン】 寒冷地ズバ暖と言えば三菱
-
【かしこいエコキュート】 翌日気予報をインターネットで取得 太陽光発電電力を使っていきます
-
【安全、安心】 玄関ドアはスマホ操作 外出先からも開け閉め履歴がわかります
-
【高断熱はマドから】 総合設計は東西南北トリプルガラス 結露も激減します!
-
【創エネも基本】 6.82kwの太陽光パネルを搭載 ※イメージ
-
【将来も考えて】 蓄電池も増設可能なハイブリットパワコンです ※イメージ
-
フクハラ めむろーど店
-
ツルハ めむろ店
-
芽室公立病院
-
芽室図書館
【WEB面談可】
販売状況、見学、詳細を知りたい方はこちら!おすすめポイント
- 新築
- 駐車2台以上可
- 南向き
- オール電化
- 追い焚き風呂
- 近くて便利!徒歩5分以内にある施設
- 3分
3分- 1分
1分- 周辺施設を地図で確認
交通色がついているアイコンをクリックすると、本物件までの道順を見ることができます。
- 芽室駅JR根室本線徒歩11分(約811m)
- 十勝バス 「公立芽室病院前」停徒歩7分(約600m)
物件概要
建物の階建 地上2階建 主要採光面 南 構造 木造(2×4) 接道状況 一方 - 南側幅14.00mの公道に10.54m接道
都市計画区域 市街化区域 私道負担 地目/地勢 宅地 地勢:平坦 国土法届出 土地権利 所有権 用途地域 - 第1種中高層住居専用地域(建ぺい率:60% / 容積率:200%)
引渡し 相談 現況 施工業者 株式会社総合設計 建築確認番号 SKK20252594 取引態様 売主 物件No 仲介手数料概算 取引態様が売主なので仲介手数料は不要です 設備・特徴 - 整形地
- 閑静な住宅街
- 太陽光発電システム
- 日当り良好
- 照明器具付
- フローリング
- オール電化
- ウォークインクローゼット
- 全居室収納あり
- シューズボックス
- 温水洗浄トイレ
- シャワー付洗面化粧台
- 浴室1坪以上
- IHクッキングヒーター
- コンロ3口以上
- システムキッチン
- 食器洗乾燥機
- エアコン付
- 電気暖房
- エコキュート
- モニタ付インターホン
- 追い焚き風呂
- 庭が広い(10坪以上)
- 浄水器
- 24時間換気システム
省エネ性能ラベル
備考 学区色がついているアイコンをクリックすると、本物件までの道順を見ることができます。
主な周辺施設色がついているアイコンをクリックすると、本物件までの道順を見ることができます。
-
-
※連合隊は物件情報の精度向上に努めています:「物件情報に誤りがある」「成約済みである」などお気付きの点がございましたらこちらよりご連絡ください。
写真枚数:23枚
【日当たり充実】 南道路で日当たり良好 リビングにいながら、校庭の緑景を取り込む贅沢な眺め ※イメージ
1階間取り
2階間取り
配置図
内観 CG
【お手入れ簡単ホーロー収納】 パネルはマグネット製品仕様できます ※イメージCG
お手入れカンタンレンジフード ※イメージ
【ゴトクがないから】 お掃除らくらくIH ※イメージ
【時短と言えば】 食洗機洗い乾燥機ですね
【汚れた手でも】 触らずクリーン 節水でも強い味方
【いつまでもクリーンなUB】 が楽しい浴室 ※イメージCG
【水アカが付きにくい】 ハイバックカウンター ※イメージCG
【水アカが付きにくい】 ハイバックカウンター ※イメージCG
【安心の冷暖エアコン】 寒冷地ズバ暖と言えば三菱
【かしこいエコキュート】 翌日気予報をインターネットで取得 太陽光発電電力を使っていきます
【安全、安心】 玄関ドアはスマホ操作 外出先からも開け閉め履歴がわかります
【高断熱はマドから】 総合設計は東西南北トリプルガラス 結露も激減します!
【創エネも基本】 6.82kwの太陽光パネルを搭載 ※イメージ
【将来も考えて】 蓄電池も増設可能なハイブリットパワコンです ※イメージ
フクハラ めむろーど店
ツルハ めむろ店
芽室公立病院
芽室図書館
地元に愛され50年
不動産取引の安心を、創業50年の経験でお約束します。 ご売却・買取り・ご購入・住宅ローン相談・賃貸・管理・リフォーム・建築についてなど、 幅広いニーズにお応えしております。何なりとご相談下さい。各種補助金の申請もお手伝い致します。 従業員一同お待ち申し上げております。