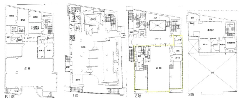
いるかビル
ここに注目!函館市元町に佇む一棟ビル「いるかビル」のご紹介です。 函館市電「末広町」駅まで徒歩8分、「十字街」駅まで徒歩9分と、主要駅まで徒歩10分圏内の好立地。 観光地として人気の元町エリアに位置し、集客力も期待できます。 価格3億円。地上4階建て、延床面積1691.63㎡の広々とした空間は、多様なビジネス展開を可能にします。 2階はレストラン・喫茶店の居抜きとなっており、即座に飲食業を始めたい方におすすめ。 3階には防音部屋があり、ラジオ局や音楽スタジオ、配信業など、音を扱うビジネスにも対応可能です。 エレベーター、エアコン、男女別トイレ、袖看板、ガス・給排水設備など、事業運営に必要な設備も充実。 敷地内には月極駐車場10台分(1台5,000円)を確保しており、お客様や従業員の利便性も考慮されています。 飲食全般(重飲食含む)、小売・物販、アミューズメントなど、幅広い業種に推奨。 歴史と文化が息づく元町で、新たなビジネスを始めてみませんか? この機会にぜひ一度ご内見ください。お問い合わせをお待ちしております。
この物件は レストラン 喫茶・カフェ の居抜き物件です。
現状の設備が残されたまま取引されるため、初期費用を抑え速やかに事業を開始できるメリットがあります。
| 価格 |
3億円
|
|---|---|
| 建物面積 | 1691.63m² (511.71坪) |
| 土地面積 | 980.81m² (296.69坪)(公簿) |
| 住所 | 北海道函館市元町18-11 |
| 交通 | 末広町駅(徒歩8分)|十字街駅(徒歩9分)道順を見る |
| 築年月 | 築32年(1993年2月) |
| 駐車場 |
近隣月極駐車場 (5万円/台) 駐車可能台数:10台
1台5,000円×10台 |
| 用途地域 |
|
販売状況、見学、詳細を知りたい方はこちら!
お電話の際は「連合隊の物件」とお伝えください。
情報掲載期限:あと23日(更新日 2025/11/28)
- 物件写真・概要
- 周辺地図
-
▼クリックで左の拡大画像が変わります。 すべての写真を拡大
販売状況、見学、詳細を知りたい方はこちら!
おすすめポイント
- エアコン付
- 袖看板あり
- 出店するなら…この業種がおすすめ!
- 飲食全般(重飲食含む)

- 喫茶・カフェ(軽飲食)

- バー・クラブ・スナック

- 小売・物販

- 美容・健康・介護

- 医療

- 教育・スクール

- 事務所

- アミューズメント

交通色がついているアイコンをクリックすると、本物件までの道順を見ることができます。
物件概要
建物の階建 地上4階建 総戸数 1戸 主要採光面 構造 その他(鉄筋コンクリート・鉄骨) 居抜き情報 [レストラン、喫茶・カフェ] の居抜き接道状況 一方 - 北西側幅12.20mの公道に36.97m接道
都市計画区域 市街化区域 私道負担 地目/地勢 宅地 地勢:高台 国土法届出 土地権利 所有権 用途地域 - 第1種住居地域(建ぺい率:60% / 容積率:200%)
引渡し 相談 現況 空き 取引態様 仲介 物件No 仲介手数料概算 996万6,000円(金額は概算です。正確な金額は不動産会社へお問合せ下さい) 設備・特徴 - エレベーター
- ガス設備
- 給排水設備
- エアコン付
- 男女別トイレ(共用部)
- 袖看板あり
備考 ◇間取、設備等は現状を優先とします◇2階レストラン・喫茶店 居抜きとなっています◇3階 防音部屋有り(以前、ラジオ関係の企業入居していました)◇ 主な周辺施設色がついているアイコンをクリックすると、本物件までの道順を見ることができます。
-
※連合隊は物件情報の精度向上に努めています:「物件情報に誤りがある」「成約済みである」などお気付きの点がございましたらこちらよりご連絡ください。
写真枚数:30枚
1階
1階
1階
1階
1階
1階
2階
2階
2階
2階
2階
2階
3階
3階
3階
3階
3階
3階
BF1階
BF1階
BF1階
BF1階
BF1階
BF1階
BF1階
2階
函館市内の売買・賃貸はフルカワ不動産販売へお任せください
昭和60年4月より不動産業に従事してまいりました。 経験を基に 新たな知識も取り入れ、お客様のご希望にお応えします。 女性スタッフも従事しております。お気軽にご相談下さい。