榎本町リフォーム済み中古住宅
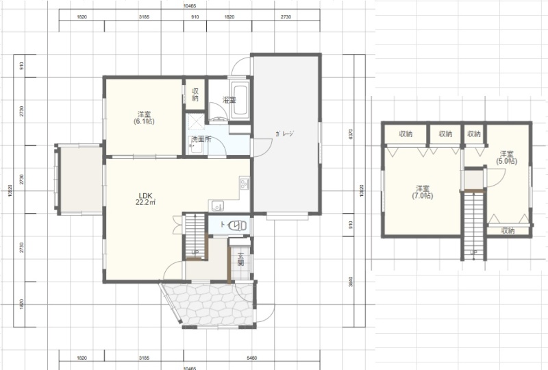
ここに注目!函館市榎本町に、快適な新生活を予感させるリフォーム済みの一戸建てが登場しました!バス停まで徒歩3分とアクセス良好で、毎日の通勤・通学やお出かけもスムーズです。 内外装は美しくリフォームされており、まるで新築のようなおしゃれな空間が広がります。北海道の冬も安心の断熱サッシも取り換え済みで、一年中快適にお過ごしいただけますよ。広々とした敷地に建つ3LDKの間取りは、ご家族皆様でゆったりと過ごすのにぴったり。南向きで日当たりも良好なので、明るいリビングで素敵な時間が過ごせそうです。2台分の車庫も完備しており、お車の出し入れもラクラクですね。 システムキッチンや広々1坪以上の浴室、温水洗浄トイレ、シャワー付洗面化粧台など、水回り設備も充実。エアコンや灯油暖房、玄関フードも備わり、快適な毎日をサポートします。スーパーやコンビニが徒歩圏内にあり、日々のお買い物にも困りません。お子様の通学に安心な小学校・中学校も近く、見晴公園も徒歩圏内なので、休日のレジャーにも最適です。閑静な住宅街で、落ち着いた暮らしを始めてみませんか。
| 価格 |
980万円
|
|---|---|
| 建物面積 | 111.83m² (33.82坪) |
| 土地面積 | 227.8m² (68.9坪)(公簿) |
| 間取り | 3LDK |
| 住所 | 北海道函館市榎本町34-19 |
| 交通 | 函館バス 「榎本団地」停(徒歩3分) |
| 築年月 | 築52年(1973年11月) |
| 駐車場 |
あり 駐車可能台数:2台
|
販売状況、見学、詳細を知りたい方はこちら!
お電話の際は「連合隊の物件」とお伝えください。
情報掲載期限:あと12日(更新日 2026/3/18)
- 物件写真・概要
- 周辺地図
-
販売状況、見学、詳細を知りたい方はこちら!
おすすめポイント
- 駐車2台以上可
- 車庫あり
- 南向き
- 都市ガス
交通
- 函館バス 「榎本団地」停徒歩3分
物件概要
建物の階建 地上2階建 主要採光面 南 構造 その他(コンクリートブロック 木造亜鉛メッキ鋼板葺き) 接道状況 一方 - 東側幅8.00mの公道に17.00m接道
都市計画区域 市街化区域 私道負担 なし 地目/地勢 宅地 地勢:平坦 国土法届出 不要 土地権利 所有権 用途地域 - 第1種低層住居専用地域(建ぺい率:50% / 容積率:100%)
引渡し 相談 現況 空き 取引態様 仲介 物件No 155 仲介手数料概算 38万9,400円(金額は概算です。正確な金額は不動産会社へお問合せ下さい) 修繕履歴 - 2010年8月頃に物件全体を部分的にリフォームしています。
設備・特徴 - 整形地
- 閑静な住宅街
- 車庫あり
- 玄関フード
- 照明器具付
- 温水洗浄トイレ
- シャワー付洗面化粧台
- 浴室に窓
- 浴室1坪以上
- システムキッチン
- 都市ガス
- エアコン付
- 灯油暖房
- 灯油ボイラー
- 日当り良好
備考 広々敷地 日当たり良好 車庫付き 断熱樹脂サッシ交換 おしゃれな内外装 リフォーム済み 学区色がついているアイコンをクリックすると、本物件までの道順を見ることができます。
主な周辺施設色がついているアイコンをクリックすると、本物件までの道順を見ることができます。
-
※連合隊は物件情報の精度向上に努めています:「物件情報に誤りがある」「成約済みである」などお気付きの点がございましたらこちらよりご連絡ください。
写真枚数:24枚
★物件買取致します。ご相談下さい!★