函館市鍛治2丁目大型平屋物件
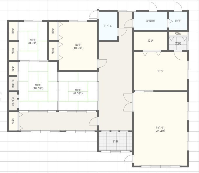
ここに注目!函館市鍛治に、ゆとりの新生活を叶える大型平屋物件が登場しました!広々とした約278坪の敷地には、美しい庭が広がり、南東向きで日当たりも良好なのが嬉しいポイントです。函館バス「鍛治団地裏」停まで徒歩1分と、毎日の通勤・通学にも大変便利ですね。 建物は、家族みんなが快適に過ごせる4LDK。平屋ならではの移動のしやすさは、バリアフリー設計と相まって、どなたにも優しい住まいです。202.96m²のゆったりとした空間には、ウォークインクローゼットや納戸、全居室収納など、豊富な収納スペースが魅力。システムキッチンや浴室1坪以上、二重サッシ、灯油暖房など、快適な暮らしを支える設備も充実しています。 車庫と物置も完備し、最大5台駐車可能なので、来客時も安心です。周辺にはスーパーや飲食店、銀行、ホームセンターなどが揃い、生活利便性も抜群。小学校や中学校も近く、子育て世代にも魅力的な環境です。 この機会に、ぜひ現地でこの物件の魅力を体感してみませんか?
| 価格 |
3,980万円
|
|---|---|
| 建物面積 | 202.96m² (61.39坪) |
| 土地面積 | 920.67m² (278.5坪)(公簿) |
| 間取り | 4LDK |
| 住所 | 北海道函館市鍛治2丁目14-14 |
| 交通 | 函館バス「鍛治団地裏」停 (徒歩1分) |
| 築年月 | 築30年(1995年6月) |
| 駐車場 |
あり 駐車可能台数:5台
|
販売状況、見学、詳細を知りたい方はこちら!
お電話の際は「連合隊の物件」とお伝えください。
情報掲載期限:あと12日(更新日 2026/3/18)
- 物件写真・概要
- 周辺地図
-
販売状況、見学、詳細を知りたい方はこちら!
おすすめポイント
- 駐車2台以上可
- 車庫あり
- 平屋
交通
- 函館バス「鍛治団地裏」停 徒歩1分
物件概要
建物の階建 地上1階建 主要採光面 南東 構造 木造 接道状況 一方 - 南東側幅6.00mの私道に30.60m接道
都市計画区域 市街化区域 私道負担 なし 地目/地勢 宅地 地勢:平坦 国土法届出 不要 土地権利 所有権 用途地域 - 第1種低層住居専用地域(建ぺい率:50% / 容積率:100%)
引渡し 相談 現況 空き 取引態様 仲介 物件No 153 仲介手数料概算 137万9,400円(金額は概算です。正確な金額は不動産会社へお問合せ下さい) 設備・特徴 - 平屋
- 閑静な住宅街
- 車庫あり
- 物置
- 庭が広い(10坪以上)
- 玄関フード
- 日当り良好
- 照明器具付
- バリアフリー
- フローリング
- 出窓
- 二重サッシ
- 納戸・トランクルーム
- ウォークインクローゼット
- 床下収納
- シューズボックス
- 全居室収納あり
- 温水洗浄トイレ
- シャワー付洗面化粧台
- 浴室に窓
- 浴室1坪以上
- システムキッチン
- カウンターキッチン
- LPガス
- エアコン付
- 灯油暖房
備考 価格調整致しました。諸条件ご相談下さい!!バリアフリー住宅 平屋 大型物件 学区色がついているアイコンをクリックすると、本物件までの道順を見ることができます。
主な周辺施設色がついているアイコンをクリックすると、本物件までの道順を見ることができます。
- DCM鍛治店約421m(徒歩6分)
- すき家函館鍛治店約338m(徒歩5分)
- 北海道銀行東山支店約485m(徒歩7分)
- スーパー魚長東山店約683m(徒歩9分)
- ゲオ函館鍛治店約799m(徒歩10分)
- 丸亀製麺函館店約711m(徒歩9分)
- コープさっぽろかじ店約766m(徒歩10分)
- 鍛神簡易郵便局約599m(徒歩8分)
- マクドナルド函館鍛治店約722m(徒歩10分)
- ツルハドラッグ函館鍛治店約837m(徒歩11分)
対象となりうる支援制度
函館市
支援制度に関するお問合せは、不動産会社ではなく、自治体の公式ページまたは担当課までご確認ください。
上記リンクは、支援制度の対象条件を一定以上満たした物件に対し自動表示しています。
-
※連合隊は物件情報の精度向上に努めています:「物件情報に誤りがある」「成約済みである」などお気付きの点がございましたらこちらよりご連絡ください。
写真枚数:29枚
★物件買取致します。ご相談下さい!★