《弊社媒介物件》入間市東藤沢★駅歩5分★一棟売マンション
ここに注目!■ アクセス ─────── 西武池袋線/武蔵藤沢駅歩5分 ■ 物件特徴 ─────── ・1R×14戸 ・2024年大規模修繕済み ・平成26年5月防水工事実施済み ・土地面積231.55平米 ・建物面積258.83平米 ・一棟売マンション ■ お知らせ ─────── ご覧頂きまして有難うございます 長期借入、各種ローン、リフォーム等お気軽にご相談下さい ご不明な点がございましたら、ご遠慮なくお問い合わせ下さい
| 価格 |
5,950万円
利回り8.32%
満室時想定年収:495万6,000円
|
|---|---|
| 住所 |
埼玉県入間市東藤沢1丁目
(詳細な所在地は不動産会社にお問合せください) |
| 交通 | 武蔵藤沢駅(徒歩5分) |
| 築年月 | 築36年(1989年3月) |
| 構造 | 鉄骨造 |
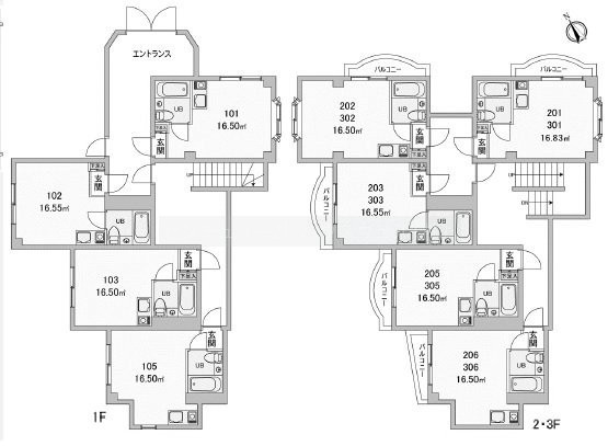
| 面積 | 建物:258.83m² (78.29坪)/ 土地:231.55m² (70.04坪) 専有:最小16.5m² (4.99坪)~最大16.83m² (5.09坪) |
| 現況 | 総戸数14戸 |
販売状況、見学、詳細を知りたい方はこちら!
お電話の際は「連合隊の物件」とお伝えください。
情報掲載期限:あと4日(更新日 2025/11/25)
- 物件写真・概要
- 周辺地図
-
販売状況、見学、詳細を知りたい方はこちら!
おすすめポイント
- 駅徒歩5分以内
交通
- 武蔵藤沢駅西武池袋線徒歩5分
物件概要
建物の階建 地上3階建 間取り ワンルーム 駐車場 あり接道状況 一方 - 北東側幅4.00mの公道に接道
都市計画区域 その他(市街化) 用途地域 - 第2種住居地域(建ぺい率:60% / 容積率:200%)
私道負担 地目/地勢 宅地 国土法届出 土地権利 所有権 引渡し 相談 取引態様 仲介 物件No 260037981 仲介手数料概算 不動産会社へお問合せください 設備・特徴 備考 収益物件・一棟売り -
ホームページはこちら
埼玉県知事 (5) 第20300号
センチュリー21 ハウスウェル(株)〒330-0852
TEL:048-662-1011
TEL:0120-210-307
FAX:048-662-1013
営業時間:10:00~19:00
※連合隊は物件情報の精度向上に努めています:「物件情報に誤りがある」「成約済みである」などお気付きの点がございましたらこちらよりご連絡ください。
写真枚数:2枚
不動産売買・仲介・建築・リフォーム・賃貸仲介・賃貸管理・資産運用コンサルを行っております。社内の経験豊富な投資プランナーがローン相談から資産運用まで幅広く提案しております。※提携ローンも多数あり