2019年築 スーパー前 店舗+2LDK
ここに注目!ライフワンは写真たっぷり。蕨・西川口駅(乗降客数 約12万人+約11.7万人) スーパーの目の前にある、2019年11月築の店舗付住宅です。 購入後の賃貸管理はライフワンにお任せください。埼玉南東・東京北東に特化し、社員大工の自社施工でコストダウンを実現。20~40代の女性スタッフ中心、高齢者・外国人にも寄り添う、まごころサポートが自慢です
| 価格 |
2,880万円
利回り7.88%
満室時想定年収:226万8,000円
|
|---|---|
| 住所 | 埼玉県川口市前川 (詳細非公開) |
| 交通 | 蕨駅(徒歩35分)|西川口駅(徒歩37分) |
| 築年月 | 築6年(2019年12月) |
| 構造 | 木造 |
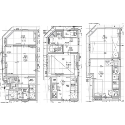
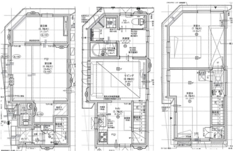
| 面積 | 建物:83.36m² (25.21坪)/ 土地:44.09m² (13.33坪)(公簿) |
| 現況 | 現在満室(総戸数2戸中 2戸賃貸中) |
【WEB面談可】
販売状況、見学、詳細を知りたい方はこちら!
お電話の際は「連合隊の物件」とお伝えください。
情報掲載期限:あと19日(更新日 2026/2/3)
- 物件写真・概要
- 周辺地図
-
【WEB面談可】
販売状況、見学、詳細を知りたい方はこちら!おすすめポイント
- 現在満室
- 築10年以内
交通
- 蕨駅JR京浜東北線徒歩35分
- 西川口駅JR京浜東北線徒歩37分
物件概要
建物の階建 地上3階建 間取り その他×1戸、2LDK×1戸 駐車場 なし接道状況 角地 - 北側幅9.70mの公道に接道
- 西側の公道に接道
都市計画区域 市街化区域 用途地域 - 第1種住居地域(建ぺい率:60% / 容積率:200%)
私道負担 なし 地目/地勢 宅地 地勢:平坦 国土法届出 不要 土地権利 所有権 引渡し 相談 取引態様 仲介 物件No 仲介手数料概算 不動産会社へお問合せください 設備・特徴 - バス/トイレ別
備考 路線価:185D 都市ガス 公営水道 東京電力 日照良好 角住戸率100% 室内洗濯機置場 主な周辺施設
- ファミリーマート川口前川店約128m(徒歩2分)
- セブンイレブン川口前川3丁目店約367m(徒歩5分)
- スーパーバリュー川口前川店約139m(徒歩2分)
- ベルク川口前川店約766m(徒歩10分)
- サンドラッグ川口前川店約191m(徒歩3分)
- しいのみ保育園約615m(徒歩8分)
- 川口市立前川保育所約597m(徒歩8分)
- 埼玉県立鳩ケ谷高校約1.7km(徒歩21分)
- 医療法人社団康幸会かわぐち心臓呼吸器病院約1.1km(徒歩13分)
- 川口前川郵便局約247m(徒歩4分)
-

この物件の担当者 中島明莉(なかじまあかり)
ライフワン入社3年目。賃貸メインにやってきましたが売買に挑戦中。 賃貸売買両方の知識を活かしてお客様に寄り添える接客を目指します。また、建築・建設分野についてもお客様のご相談いただけるよう、専門学校で勉強中です。数年以内に建築士になる事、不動産投資家になることを目標にしています。
ホームページはこちら埼玉県知事(4) 第21917号
(株)ライフワン 【WEB面談可】〒340-0015
TEL:0120-170-639
TEL:048-960-0639
FAX:050-3737-4448
営業時間:9:30~18:30
定休日:毎週 水曜
- 加入団体
- (公社)全日本不動産協会
- 保証協会
- (公社)不動産保証協会
- 公正取引協議会
- (公社)首都圏不動産公正取引協議会
※連合隊は物件情報の精度向上に努めています:「物件情報に誤りがある」「成約済みである」などお気付きの点がございましたらこちらよりご連絡ください。
写真枚数:9枚
2010年創業した投資専業会社。僕らは現地撮影した写真を常時約100件ほど掲載中しており楽待・健美家にも加盟中。他のポータルサイトに他社が掲載している物件も取扱OKですのでお気軽にお声掛け下さい。
お知らせ:2025年8月28日に特別背任罪で草加警察に逮捕された越谷市の不動産会社社長と当社の社長の山田博は同姓同名しかも同漢字ですが、まったくの別人です。当社の代表は2003年に投資用区分ワンルームを買った事を機にサラリーマン大家業デビュー。2010年にライフワン創業し東京北・埼玉南にエリアを絞って自社投資・仲介と賃貸管理業をしています。建設業免許、賃貸住宅管理業免許も保有しています。