蕨駅 2023年築 アパート
ここに注目!ライフワンは写真たっぷり。蕨駅(乗降数 約12.3万)上下2世帯の築浅アパート 南浦和駅も利用可(徒歩22分)
| 価格 |
2,780万円
利回り5.61%
満室時想定年収:156万円
|
|---|---|
| 住所 | 埼玉県川口市芝富士1-19-17 |
| 交通 | 南浦和駅(徒歩22分)|蕨駅(徒歩18分)道順を見る |
| 築年月 | 築2年(2023年8月) |
| 構造 | 木造 |
| 面積 | 建物:37.05m² (11.2坪)/ 土地:31.33m² (9.47坪)(公簿)※セットバック済み |
| 現況 | 現在満室(総戸数2戸中 2戸賃貸中) |
【WEB面談可】
販売状況、見学、詳細を知りたい方はこちら!
お電話の際は「連合隊の物件」とお伝えください。
情報掲載期限:あと22日(更新日 2025/12/11)
- 物件写真・概要
- 周辺地図
-
【WEB面談可】
販売状況、見学、詳細を知りたい方はこちら!おすすめポイント
- 現在満室
- 築3年以内
- 複数路線利用可
交通色がついているアイコンをクリックすると、本物件までの道順を見ることができます。
物件概要
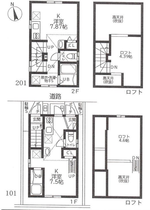
建物の階建 地上2階建 間取り 1K×2戸 駐車場 接道状況 一方 - 北側幅3.80mの私道に4.50m接道
都市計画区域 市街化区域 用途地域 - 第1種住居地域(建ぺい率:60% / 容積率:160%)
私道負担 あり(私道面積:8.26m²) 地目/地勢 宅地 地勢:平坦 国土法届出 不要 土地権利 所有権 引渡し 即時 取引態様 仲介 物件No 仲介手数料概算 不動産会社へお問合せください 設備・特徴 - バス/トイレ別
- 複数路線利用可
備考 路線価:180D近傍 都市ガス 本下水 角住戸率100% 閑静な住宅地 カメラ付インターホン セットバック0.86㎡を公簿32.19㎡から引いてあります。宅地部分の他に私道提供部分8.26㎡があります。 主な周辺施設色がついているアイコンをクリックすると、本物件までの道順を見ることができます。
-

この物件の担当者 中島明莉(なかじまあかり)
ライフワン入社3年目。賃貸メインにやってきましたが売買に挑戦中。 賃貸売買両方の知識を活かしてお客様に寄り添える接客を目指します。また、建築・建設分野についてもお客様のご相談いただけるよう、専門学校で勉強中です。数年以内に建築士になる事、不動産投資家になることを目標にしています。
ホームページはこちら埼玉県知事(4) 第21917号
(株)ライフワン 【WEB面談可】〒340-0015
TEL:0120-170-639
TEL:048-960-0639
FAX:050-3737-4448
営業時間:9:30~18:30
定休日:毎週 水曜
- 加入団体
- (公社)全日本不動産協会
- 保証協会
- (公社)不動産保証協会
- 公正取引協議会
- (公社)首都圏不動産公正取引協議会
※連合隊は物件情報の精度向上に努めています:「物件情報に誤りがある」「成約済みである」などお気付きの点がございましたらこちらよりご連絡ください。
写真枚数:12枚
2010年創業した投資専業会社。僕らは現地撮影した写真を常時約100件ほど掲載中しており楽待・健美家にも加盟中。他のポータルサイトに他社が掲載している物件も取扱OKですのでお気軽にお声掛け下さい。
お知らせ:2025年8月28日に特別背任罪で草加警察に逮捕された越谷市の不動産会社社長と当社の社長の山田博は同姓同名しかも同漢字ですが、まったくの別人です。当社の代表は2003年に投資用区分ワンルームを買った事を機にサラリーマン大家業デビュー。2010年にライフワン創業し東京北・埼玉南にエリアを絞って自社投資・仲介と賃貸管理業をしています。建設業免許、賃貸住宅管理業免許も保有しています。