一棟アパート|投資
ナズ・ドゥカーレ池上
| 価格 |
1億5,400万円
利回り4.5%
満室時想定年収:693万6,000円
|
|---|---|
| 住所 | 東京都大田区池上7-31-2 |
| 交通 | 矢口渡駅(徒歩7分)|武蔵新田駅(徒歩10分)|池上駅(徒歩11分)道順を見る |
| 築年月 | 築1年(2024年2月) |
| 構造 | 木造 |
| 面積 | 建物:157.64m² (47.68坪)/ 土地:113.86m² (34.44坪)(実測) |
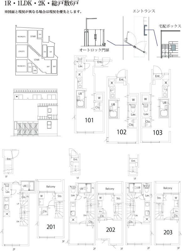
| 現況 | 現在満室(総戸数6戸中 6戸賃貸中) |
販売状況、見学、詳細を知りたい方はこちら!
お電話の際は「連合隊の物件」とお伝えください。
03-5731-6010
情報掲載期限:あと17日(更新日 2025/12/5)
- 物件写真・概要
- 周辺地図
-
販売状況、見学、詳細を知りたい方はこちら!
おすすめポイント
- 現在満室
- 築3年以内
交通色がついているアイコンをクリックすると、本物件までの道順を見ることができます。
物件概要
建物の階建 地上3階建 間取り 駐車場 接道状況 都市計画区域 用途地域 - 第1種中高層住居専用地域(建ぺい率:60% / 容積率:200%)
私道負担 なし 地目/地勢 宅地 地勢:平坦 国土法届出 土地権利 所有権 引渡し 相談 取引態様 代理 物件No 仲介手数料概算 不動産会社へお問合せください 設備・特徴 - デザイナーズ
- バス/トイレ別
- オートロック
備考 主な周辺施設色がついているアイコンをクリックすると、本物件までの道順を見ることができます。
-
※連合隊は物件情報の精度向上に努めています:「物件情報に誤りがある」「成約済みである」などお気付きの点がございましたらこちらよりご連絡ください。
写真枚数:10枚
エントランス
オートロック・宅配ボックス
防犯カメラ