ホーユウコンフォルト白楽C棟
ここに注目!「ホーユウコンフォルト白楽 C棟」は、投資物件をお探しの方にぜひご検討いただきたい一室です。 魅力は何と言っても「表面利回り10%」!年間想定収入54万円で、安定した収益が期待できます。現在賃貸中ですので、購入後すぐに家賃収入を得られるのが嬉しいポイントですね。 お部屋は3階建ての最上階、開放感あふれる角部屋で、南西向きのL字型バルコニーからはたっぷりの陽光が差し込み、日当たり・風通しともに良好です。IHクッキングヒーターやエアコン、室内洗濯機置場など、快適な生活をサポートする設備も充実しています。 東急東横線「白楽駅」まで徒歩17分、複数路線が利用でき、神奈川大学へも徒歩1分と学生さんにも人気のエリアです。周辺にはコンビニ(徒歩3分)やスーパー(徒歩4分)もあり、日々の暮らしに便利な環境が整っています。新耐震基準の建物で安心感もございます。
☆『不動産投資+賃貸経営』の専門家が 失敗しない不動産投資を伝授☆
| 価格 |
540万円
利回り10%
満室時想定年収:54万円
管理費5,940円/月修繕積立金1万470円/月
|
|---|---|
| 住所 | 神奈川県横浜市神奈川区六角橋4-5-9 |
| 交通 | 白楽駅(徒歩17分)|東白楽駅(徒歩18分)|片倉町駅(徒歩19分)|三ツ沢下町駅(徒歩17分)道順を見る |
| 築年月 | 築38年(1988年1月) |
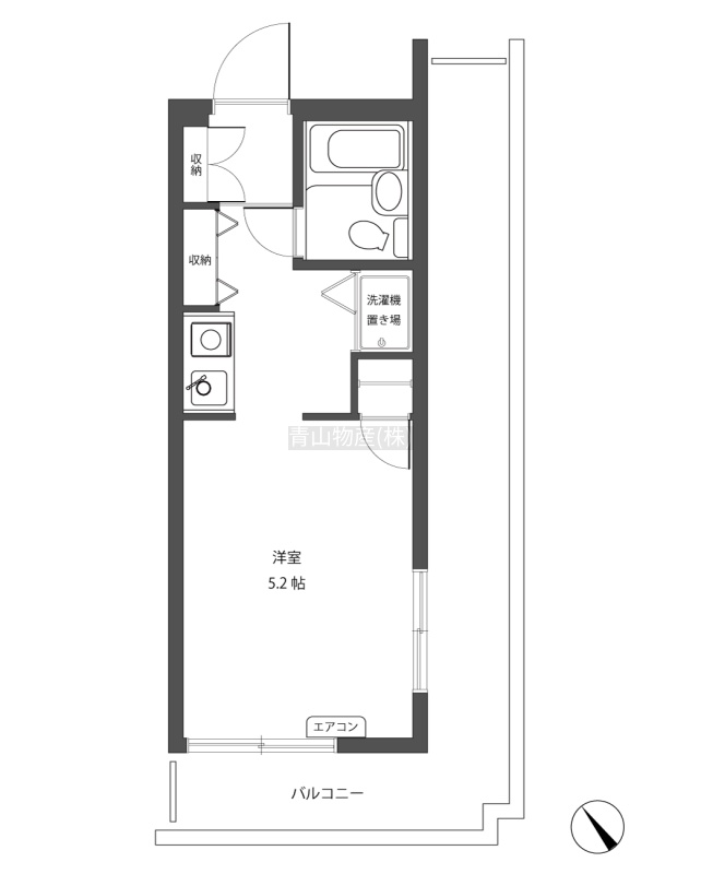
| 間取・専有 |
1K(17.17m²)└ K5.2帖
|
| 所在階 | 3階 / 地上3階建 |
| 現況 | 賃貸中 |
【WEB面談可】
販売状況、見学、詳細を知りたい方はこちら!
お電話の際は「連合隊の物件」とお伝えください。
情報掲載期限:あと11日(更新日 2026/5/7)
- 物件写真・概要
- 周辺地図
-
【WEB面談可】
販売状況、見学、詳細を知りたい方はこちら!おすすめポイント
- 賃貸中
- 大学・専門近く
- 複数路線利用可
- 角部屋
- 2階以上
- 最上階
交通色がついているアイコンをクリックすると、本物件までの道順を見ることができます。
物件概要
土地権利 所有権 主要採光面 南西 構造 鉄筋コンクリート(RC)造 駐車場 なしバルコニー あり(9.94m²)- バルコニー南向き
管理形態 全部委託 管理組合 有 引渡し 相談 管理人 日勤 取引態様 仲介 物件No 仲介手数料概算 24万4,200円(金額は概算です。正確な金額は不動産会社へお問合せ下さい) 設備・特徴 - 大学・専門近く
- 複数路線利用可
- 駐輪場
- 角部屋
- 日当り良好
- 照明器具付
- 室内洗濯機置場
- シューズボックス
- IHクッキングヒーター
- 都市ガス
- エアコン付
- 最上階
備考 表面利回り10% 神奈川大学徒歩1分。角部屋でL字型のバルコニー付き。南向き 最上階 角部屋で、日当たり風通し良好。 室内洗濯機置場 新耐震基準 主な周辺施設色がついているアイコンをクリックすると、本物件までの道順を見ることができます。
-
※連合隊は物件情報の精度向上に努めています:「物件情報に誤りがある」「成約済みである」などお気付きの点がございましたらこちらよりご連絡ください。
写真枚数:14枚
築古区分マンション + CPM(米国不動産経営管理士)によるサポートを提供いたします。
青山物産は築古区分マンション投資を得意としています。CPMが物件を分析しご紹介。購入後の管理も、管理歴15年の実績で多数のオーナー様に喜んでいただいています。不動産投資が初めての方も丁寧にご説明します。