一戸建て|投資
大和市【令和6年12月築】3LDK【想定利回り6%】駐車場有
| 価格 |
3,600万円
利回り6%
満室時想定年収:216万円
|
|---|---|
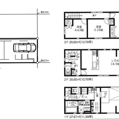
| 住所 | 神奈川県大和市柳橋5 |
| 交通 | 桜ヶ丘駅(徒歩16分)道順を見る |
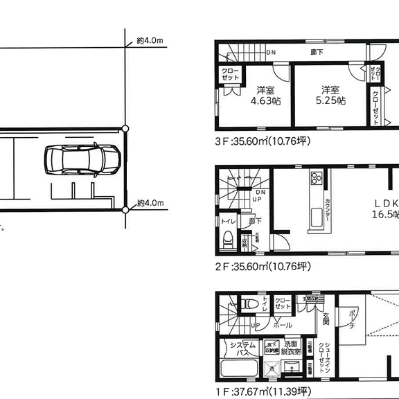
| 築年月 | 築1年(2024年12月) |
| 構造 | 木造 |
| 面積 | 建物:108.87m² (32.93坪)/ 土地:60.66m² (18.34坪) |
| 現況 | 賃貸中 |
販売状況、見学、詳細を知りたい方はこちら!
お電話の際は「連合隊の物件」とお伝えください。
042-710-7622
新着 情報掲載期限:あと30日(更新日 2026/4/9)
- 物件写真・概要
- 周辺地図
-
販売状況、見学、詳細を知りたい方はこちら!
おすすめポイント
- 賃貸中
- 築3年以内
交通色がついているアイコンをクリックすると、本物件までの道順を見ることができます。
物件概要
建物の階建 地上3階建 構造 木造 間取り 3LDK 駐車場 接道状況 - 東側幅4.00mの公道に接道
都市計画区域 市街化区域 用途地域 - 準工業地域(建ぺい率:60% / 容積率:200%)
私道負担 地目/地勢 宅地 国土法届出 土地権利 所有権 引渡し 相談 取引態様 仲介 物件No 85125 仲介手数料概算 不動産会社へお問合せください 設備・特徴 備考 ◎シューズインクローゼット ◎駐車場あり 【まずはお気軽にお問い合わせください!】 主な周辺施設色がついているアイコンをクリックすると、本物件までの道順を見ることができます。
-
※連合隊は物件情報の精度向上に努めています:「物件情報に誤りがある」「成約済みである」などお気付きの点がございましたら こちら よりご連絡ください。
写真枚数:1枚
1都3県 一棟収益物件なら アクセルワンにお任せください。