一棟マンション|投資

西武狭山線『下山口』駅徒歩圏【想定利回り8.34%】全9戸

価格
9,000 利回り8.34%
満室時想定年収:750万8,400円
住所 埼玉県所沢市山口 (詳細非公開)
交通 西武園ゆうえんち駅(徒歩5分)|下山口駅(徒歩15分)
築年月 築33年(1992年6月)
構造 鉄骨造
面積
建物:504.85m² (152.71坪)/
土地:275.64m² (83.38坪)
現況 総戸数9戸

販売状況、見学、詳細を知りたい方はこちら!

お電話の際は「連合隊の物件」とお伝えください。

042-710-7622

新着 情報掲載期限:あと30日(更新日 2026/3/10)

  • 物件写真・概要
  • 周辺地図
  • ▼クリックで左の拡大画像が変わります。

    販売状況、見学、詳細を知りたい方はこちら!

    おすすめポイント

    • 駅徒歩5分以内

    交通

    • 西武園ゆうえんち駅レオライナー徒歩5分
    • 下山口駅西武狭山線徒歩15分

    物件概要

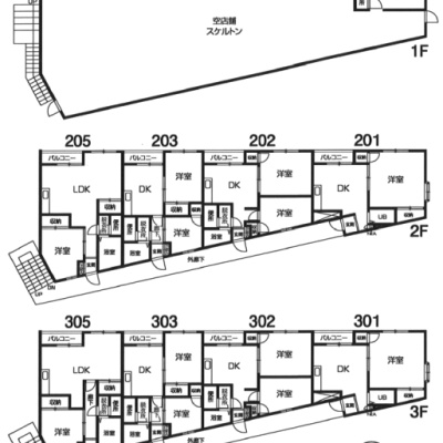
    建物の階建 地上3階建
    間取り
    駐車場
    接道状況
    • 東側幅11.50mの公道に接道
    • 北側幅6.00mの公道に接道
    • 北西側幅3.40mの公道に接道
    都市計画区域 市街化調整区域
    用途地域
    • (建ぺい率:60% / 容積率:200%)
    私道負担
    地目/地勢 国土法届出
    土地権利 所有権
    引渡し 相談
    取引態様 仲介 物件No 85037
    仲介手数料概算 不動産会社へお問合せください

    設備・特徴
    備考 ◎令和6年 : 外壁工事実施 ◎接道状況 ・東側 11.5m 市道 /北側 6m 市道 ・北西側 3.4m 市道 (生活道路のため道路中心線から2.1mの後退を要する) 【まずはお気軽にお問い合わせください!】

    主な周辺施設

    • ファミリーマート西武園西店約226m(徒歩3分)
    • バラエティストアーかわしま約849m(徒歩11分)
    • サンキ所沢店約858m(徒歩11分)
    • 業務スーパー所沢下山口店約965m(徒歩13分)
    • 武蔵野銀行下山口支店約1.2km(徒歩14分)
  • この物件の地図は表示されません

    詳細な所在地は非公開となっています。
    詳しくは不動産会社にお問合せください。
  • この物件へのお問合せ

    一棟マンション|投資
    9,000
    利回り8.34%築33年
    埼玉県所沢市山口

    販売状況、見学、詳細を知りたい方はこちら!

    042-710-7622

    お電話の際は「連合隊の物件」
    お伝えください。

    〒194-0022

    東京都町田市森野1-33-11
    町田森野ビル 302

    TEL:042-710-7622

    営業時間:9:30~19:00

    定休日:毎週 火曜・水曜

    1都3県 一棟収益物件なら アクセルワンにお任せください。

    保証協会
    (公社)不動産保証協会
    公正取引協議会
    (公社)首都圏不動産公正取引協議会

※連合隊は物件情報の精度向上に努めています:「物件情報に誤りがある」「成約済みである」などお気付きの点がございましたら こちら よりご連絡ください。

写真枚数:3枚

閉じる

拡大

拡大

拡大

物件情報トップへ