一棟ビル|投資
川崎市川崎区・想定利回り6.28%【満室稼働中】全5戸
| 価格 |
8,500万円
利回り6.28%
満室時想定年収:534万3,384円
|
|---|---|
| 住所 | 神奈川県川崎市川崎区中島3 |
| 交通 | 港町駅(徒歩16分)|鈴木町駅(徒歩16分)|「大島五丁目」停(徒歩3分)道順を見る |
| 築年月 | 築36年(1989年7月) |
| 構造 | 鉄骨造 |
| 面積 | 建物:231m² (69.87坪)/ 土地:88.96m² (26.91坪)(公簿) |
| 現況 | 現在満室(総戸数5戸中 5戸賃貸中) |
販売状況、見学、詳細を知りたい方はこちら!
お電話の際は「連合隊の物件」とお伝えください。
042-710-7622
情報掲載期限:あと26日(更新日 2025/12/14)
- 物件写真・概要
- 周辺地図
-
販売状況、見学、詳細を知りたい方はこちら!
おすすめポイント
- 現在満室
交通色がついているアイコンをクリックすると、本物件までの道順を見ることができます。
- 港町駅京急大師線徒歩16分
- 鈴木町駅京急大師線徒歩16分
- 川崎駅JR南武線、JR東海道本線、JR京浜東北線バス10分→ 「大島五丁目」停徒歩3分
物件概要
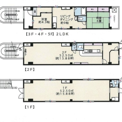
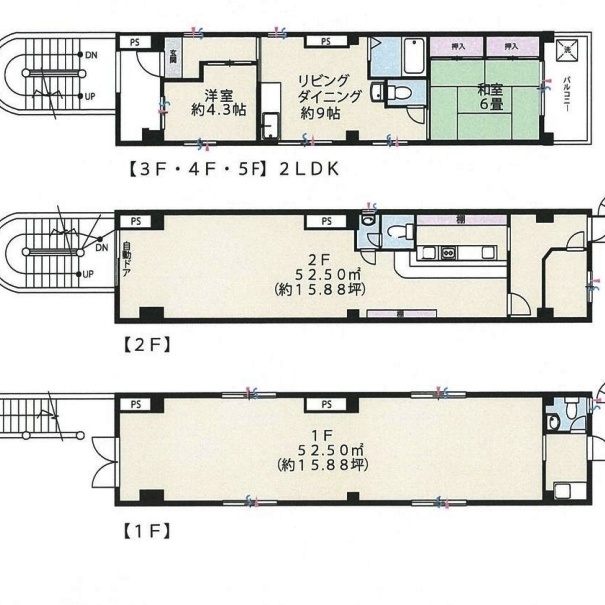
建物の階建 地上5階建 間取り 2LDK×3戸、その他×2戸 駐車場 接道状況 - 西側幅8.00mの公道に接道
都市計画区域 用途地域 - 近隣商業地域(建ぺい率:80% / 容積率:300%)
私道負担 地目/地勢 宅地 国土法届出 土地権利 所有権 引渡し 即時 取引態様 仲介 物件No 84674 仲介手数料概算 不動産会社へお問合せください 設備・特徴 備考 ◎商店街の中央に位置 ◎1階・2階:店舗 / 3階・4階・5階:住居(2LDK) 【まずはお気軽にお問い合わせください!】 主な周辺施設色がついているアイコンをクリックすると、本物件までの道順を見ることができます。
-
※連合隊は物件情報の精度向上に努めています:「物件情報に誤りがある」「成約済みである」などお気付きの点がございましたら こちら よりご連絡ください。
写真枚数:2枚
1都3県 一棟収益物件なら アクセルワンにお任せください。