一棟マンション|投資

茂原市【想定利回り12.14%】『茂原』駅AP・駐車場あり

価格
3,490 利回り12.14%
満室時想定年収:423万8,880円
住所 千葉県茂原市茂原 (詳細非公開)
交通 茂原駅(徒歩20分)
築年月 築35年(1990年4月)
構造 鉄骨造
面積
建物:418.89m² (126.71坪)/
土地:352.61m² (106.66坪)(公簿)
現況 総戸数10戸

販売状況、見学、詳細を知りたい方はこちら!

お電話の際は「連合隊の物件」とお伝えください。

042-710-7622

情報掲載期限:あと2日(更新日 2025/11/16)

  • 物件写真・概要
  • 周辺地図
  • 販売状況、見学、詳細を知りたい方はこちら!

    おすすめポイント

    • 利回り12%超
    • 土地100坪超

    交通

    • 茂原駅JR外房線徒歩20分

    物件概要

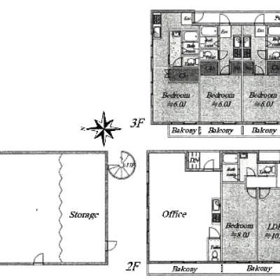
    建物の階建 地上3階建
    間取り 1K×5戸、1LDK×2戸、その他×2戸、その他×1戸
    駐車場
    接道状況
    • 北側幅8.20mの公道に接道
    • 南側幅3.30mの公道に接道
    都市計画区域 市街化区域
    用途地域
    • 準住居地域(建ぺい率:60% / 容積率:200%)
    私道負担
    地目/地勢 宅地 地勢:平坦 国土法届出
    土地権利 所有権
    引渡し 相談
    取引態様 仲介 物件No 84646
    仲介手数料概算 不動産会社へお問合せください

    設備・特徴
    備考 ◎駐車場7台 □事務所×2戸 ☆倉庫×1戸 ☆住居×7戸 □社宅等にぜひご検討ください 【まずはお気軽にお問い合わせください!】

    主な周辺施設

    • 焼肉きんぐ茂原店約16m(徒歩1分)
    • 松屋茂原店約52m(徒歩1分)
    • マツモトキヨシDS茂原マーケットプレイス店約148m(徒歩2分)
    • 茂原市役所約241m(徒歩4分)
    • 茂原郵便局約582m(徒歩8分)
  • この物件の地図は表示されません

    詳細な所在地は非公開となっています。
    詳しくは不動産会社にお問合せください。
  • この物件へのお問合せ

    一棟マンション|投資
    3,490
    利回り12.14%築35年
    千葉県茂原市茂原

    販売状況、見学、詳細を知りたい方はこちら!

    042-710-7622

    お電話の際は「連合隊の物件」
    お伝えください。

    〒194-0022

    東京都町田市森野1-33-11
    町田森野ビル 302

    TEL:042-710-7622

    営業時間:9:30~19:00

    定休日:毎週 火曜・水曜

    1都3県 一棟収益物件なら アクセルワンにお任せください。

    保証協会
    (公社)不動産保証協会
    公正取引協議会
    (公社)首都圏不動産公正取引協議会

※連合隊は物件情報の精度向上に努めています:「物件情報に誤りがある」「成約済みである」などお気付きの点がございましたら こちら よりご連絡ください。

写真枚数:2枚

閉じる

拡大

拡大

物件情報トップへ