平塚市・2003年築【満室稼働中】ロフト『東海大学前』駅AP
ここに注目!◎モニター付きインターホン ◎ロフト ◎バス・トイレ別 ◎CATV ◎インターネット対応 【まずはお気軽にお問い合わせください!】
| 価格 |
4,500万円
利回り7.09%
満室時想定年収:319万2,000円
|
|---|---|
| 住所 | 神奈川県平塚市真田4 |
| 交通 | 東海大学前駅(徒歩12分)道順を見る |
| 築年月 | 築22年(2003年3月) |
| 構造 | 木造 |
| 面積 | 建物:156.16m² (47.23坪)/ 土地:194.92m² (58.96坪) |
| 現況 | 現在満室(総戸数6戸中 6戸賃貸中) |
販売状況、見学、詳細を知りたい方はこちら!
お電話の際は「連合隊の物件」とお伝えください。
情報掲載期限:あと20日(更新日 2025/12/14)
- 物件写真・概要
- 周辺地図
-
販売状況、見学、詳細を知りたい方はこちら!
おすすめポイント
- 現在満室
交通色がついているアイコンをクリックすると、本物件までの道順を見ることができます。
物件概要
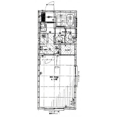
建物の階建 地上2階建 間取り 1K×6戸 駐車場 接道状況 - 西側幅4.00mの私道に接道
都市計画区域 市街化区域 用途地域 - 第1種低層住居専用地域(建ぺい率:50% / 容積率:80%)
私道負担 地目/地勢 宅地 国土法届出 土地権利 所有権 引渡し 相談 取引態様 仲介 物件No 84559 仲介手数料概算 不動産会社へお問合せください 設備・特徴 - ロフト付
- バス/トイレ別
備考 主な周辺施設色がついているアイコンをクリックすると、本物件までの道順を見ることができます。
-
※連合隊は物件情報の精度向上に努めています:「物件情報に誤りがある」「成約済みである」などお気付きの点がございましたら こちら よりご連絡ください。
写真枚数:2枚
1都3県 一棟収益物件なら アクセルワンにお任せください。