『西川口』駅徒歩9分【満室稼働中】RC造5階建
ここに注目!◎2016年8月 : 外部大規模修繕 ◎2025年3月 : エントランス共有部天井化粧仕上げ工事 ◎駐車場 : 1台あり ◎公営水道・公共下水・東京電力・都市ガス 【まずはお気軽にお問い合わせください!】
| 価格 |
1億5,800万円
利回り5.16%
満室時想定年収:815万4,000円
|
|---|---|
| 住所 | 埼玉県戸田市喜沢1 |
| 交通 | 西川口駅(徒歩9分) |
| 築年月 | 築29年(1996年3月) |
| 構造 | 鉄筋コンクリート(RC)造 |
| 面積 | 建物:357.75m² (108.21坪)/ 土地:119.04m² (36坪)(公簿) |
| 現況 | 現在満室(総戸数9戸中 9戸賃貸中) |
販売状況、見学、詳細を知りたい方はこちら!
お電話の際は「連合隊の物件」とお伝えください。
情報掲載期限:あと13日(更新日 2025/12/7)
- 物件写真・概要
- 周辺地図
-
販売状況、見学、詳細を知りたい方はこちら!
おすすめポイント
- 現在満室
交通色がついているアイコンをクリックすると、本物件までの道順を見ることができます。
物件概要
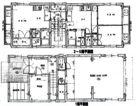
建物の階建 地上5階建 間取り 1DK×4戸、2DK×4戸、その他×1戸 駐車場 接道状況 - 北側幅15.00mの公道に接道
- 南側幅6.00mの公道に接道
都市計画区域 市街化区域 用途地域 - 近隣商業地域(建ぺい率:80% / 容積率:300%)
私道負担 地目/地勢 宅地 地勢:平坦 国土法届出 土地権利 所有権 引渡し 相談 取引態様 仲介 物件No 84290 仲介手数料概算 不動産会社へお問合せください 設備・特徴 備考 主な周辺施設色がついているアイコンをクリックすると、本物件までの道順を見ることができます。
-
※連合隊は物件情報の精度向上に努めています:「物件情報に誤りがある」「成約済みである」などお気付きの点がございましたら こちら よりご連絡ください。
写真枚数:4枚
1都3県 一棟収益物件なら アクセルワンにお任せください。