【空室】奥州市 戸建 想定利回り20.68%
ここに注目!お気軽にお問い合わせください。
| 価格 |
580万円
利回り20.68%
満室時想定年収:120万円
|
|---|---|
| 住所 | 岩手県奥州市前沢平小路 (詳細非公開) |
| 交通 | 前沢駅(徒歩16分) |
| 築年月 | 築37年(1989年1月) |
| 構造 | 木造 |
| 面積 | 建物:265.54m² (80.32坪)/ 土地:436.35m² (131.99坪) |
| 現況 | 空き |
【WEB面談可】
販売状況、見学、詳細を知りたい方はこちら!
お電話の際は「連合隊の物件」とお伝えください。
新着 情報掲載期限:あと30日(更新日 2026/3/12)
- 物件写真・概要
- 周辺地図
-
【WEB面談可】
販売状況、見学、詳細を知りたい方はこちら!おすすめポイント
- 利回り20%超
交通
- 前沢駅JR東北本線徒歩16分(約950m)
物件概要
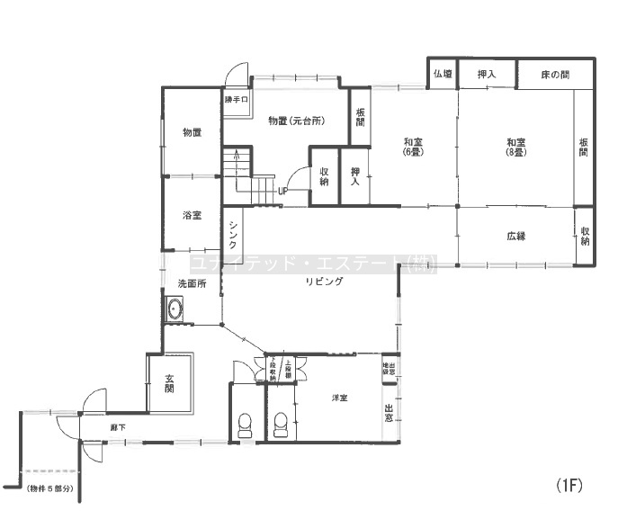
建物の階建 地上2階建 構造 木造 間取り 駐車場 接道状況 都市計画区域 用途地域 私道負担 地目/地勢 国土法届出 土地権利 所有権 引渡し 相談 取引態様 仲介 物件No 仲介手数料概算 不動産会社へお問合せください 設備・特徴 備考 建物2棟ですが繋がっており、土地・建物面積は合計を記載しております。 R7.11月 壁・軒天・クロス修繕・トイレリフォーム実施 A棟:土地 150.83㎡、建物 116.04㎡、平成1年3月築 B棟:土地 285.52㎡、建物 登記簿面積112.74㎡(現況149.5㎡)、昭和43年6月築 主な周辺施設
- セブンイレブン奥州前沢店約669m(徒歩9分)
- カンブン前沢店約428m(徒歩6分)
- クスリのアオキ前沢店約974m(徒歩13分)
- 前沢保育園約865m(徒歩11分)
- ハニーズ前沢店約1.7km(徒歩22分)
- 北日本銀行前沢支店約754m(徒歩10分)
- 前沢郵便局約1.2km(徒歩15分)
- 奥州市前沢総合支所約1.1km(徒歩14分)
-
ホームページはこちら
東京都知事 (3) 第94940号
ユナイテッド・エステート(株) 【WEB面談可】〒164-0003
TEL:03-5337-7666
FAX:03-5337-7667
営業時間:10:30~19:00
定休日:毎週 土曜・日曜・祝日
- 加入団体
- (公社)全日本不動産協会
- 保証協会
- (公社)不動産保証協会
※連合隊は物件情報の精度向上に努めています:「物件情報に誤りがある」「成約済みである」などお気付きの点がございましたらこちらよりご連絡ください。
写真枚数:5枚
弊社ユナイテッド・エステート株式会社は、東京都中野区にて2012年10月設立された不動産会社です。
中古一棟マンション・一棟アパートの売買をメインに、マンションの一室から・商業ビル・ホテル・旅館・戸建・までを全国規模で幅広く取り扱っております!