◇駅まで徒歩14分!RC造5階建て区分MS!◇
ここに注目!・宮城県石巻市のRC造5階建て区分マンション!所在階3階! ・想定利回り15.00%!! ・仙石線、仙石東北ライン 【陸前山下】駅まで徒歩14分!! ・エレベーターあり! ・平成6年築!
| 価格 |
560万円
利回り15%
管理費8,400円/月修繕積立金1万5,000円/月
|
|---|---|
| 住所 | 宮城県石巻市大街道東 (詳細非公開) |
| 交通 | 陸前山下駅(徒歩14分) |
| 築年月 | 築31年(1994年4月) |
| 間取・専有 |
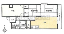
3DK(57.07m²)
|
| 所在階 | 3階(301) / 地上5階建 |
| 現況 | 空き |
販売状況、見学、詳細を知りたい方はこちら!
お電話の際は「連合隊の物件」とお伝えください。
情報掲載期限:あと27日(更新日 2026/2/12)
- 物件写真・概要
- 周辺地図
-
販売状況、見学、詳細を知りたい方はこちら!
おすすめポイント
- 利回り14%超
- 複数路線利用可
- バス/トイレ別
- エレベーター
- 2階以上
交通
- 陸前山下駅JR仙石線徒歩14分(約1.2km)
物件概要
土地権利 所有権 主要採光面 構造 鉄筋コンクリート(RC)造 駐車場 バルコニー あり管理形態 全部委託 管理組合 指定なし 引渡し 相談 管理人 取引態様 仲介 物件No MH-1119-2 仲介手数料概算 不動産会社へお問合せください 設備・特徴 - バス/トイレ別
- エレベーター
- 複数路線利用可
- 駐輪場
- 室内洗濯機置場
備考 ※上記満室想定年間収入、表面利回りは満室想定賃料をもとに算出しております。 ※現況有姿 ※契約不適合責任免責 主な周辺施設
- ダイソーヨークベニマル大街道店約545m(徒歩7分)
- モスバーガー石巻大街道店約343m(徒歩5分)
- 石巻双葉町郵便局約348m(徒歩5分)
- ふたば保育所約577m(徒歩8分)
-
ホームページはこちら
東京都知事 (1) 第105807号
AIYES不動産(株)〒171-0021
TEL:03-5944-9265
FAX:03-5944-9266
営業時間:9:00~18:00
定休日:毎週 土曜・日曜・祝日
- 保証協会
- (公社)不動産保証協会
※連合隊は物件情報の精度向上に努めています:「物件情報に誤りがある」「成約済みである」などお気付きの点がございましたらこちらよりご連絡ください。
写真枚数:2枚
結んでいただけた【縁】を大事に今までもこれからも、お客様一人一人の希望の実現化に努めます!
弊社は日本全国の物件所有者様へ直接コンタクトを取り、売却物件をお預かりさせて頂く物元最前線の不動産会社です。豊富な知識を持ったスタッフが、あなたにピッタリの物件をお探し致します!お気軽にご相談下さい!