亘理町荒浜・店舗付き住宅!
ここに注目!亘理町荒浜、店舗付き住宅先着販売開始!
| 価格 |
2,680万円
|
|---|---|
| 建物面積 | 75.25m² (22.76坪) |
| 土地面積 | 268.71m² (81.28坪) |
| 住所 | 宮城県亘理郡亘理町荒浜御仮屋159-106 |
| 交通 | |
| 築年月 | 築12年(2013年6月) |
| 駐車場 |
あり 駐車可能台数:5台
駐車場台数は車種により異なります。 |
| 用途地域 |
|
販売状況、見学、詳細を知りたい方はこちら!
お電話の際は「連合隊の物件」とお伝えください。
情報掲載期限:あと19日(更新日 2026/2/17)
- 物件写真・概要
- 周辺地図
-
販売状況、見学、詳細を知りたい方はこちら!
おすすめポイント
- 駐車2台以上可
- 出店するなら…この業種がおすすめ!
- 飲食全般(重飲食含む)

- 喫茶・カフェ(軽飲食)

- バー・クラブ・スナック

- 小売・物販

- 美容・健康・介護

- 医療

- 教育・スクール

- 事務所

- アミューズメント

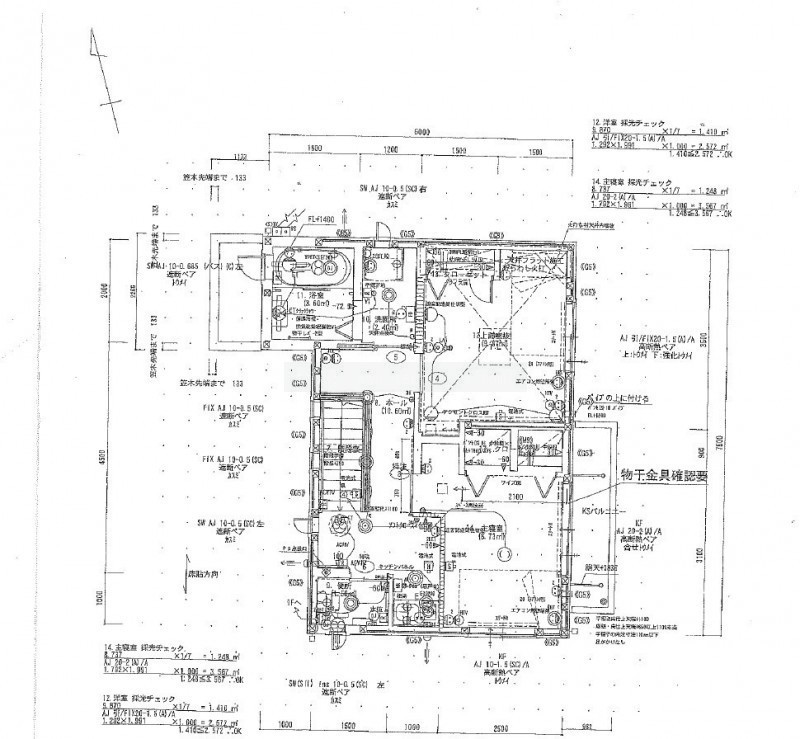
物件概要
建物の階建 地上2階建 総戸数 1戸 主要採光面 構造 木造(在来工法) 居抜き情報 接道状況 四方 - 北側幅5.90mの公道に23.70m接道
都市計画区域 非線引区域 私道負担 地目/地勢 宅地 地勢:平坦 国土法届出 土地権利 所有権 用途地域 - 第1種住居地域(建ぺい率:60% / 容積率:200%)
引渡し 相談 現況 空き 取引態様 仲介 物件No 仲介手数料概算 不動産会社へお問合せください 設備・特徴 - エアコン付
備考 ※保証会社要、保険加入要(詳細要確認) 主な周辺施設色がついているアイコンをクリックすると、本物件までの道順を見ることができます。
-
ホームページはこちら
国土交通大臣 (1) 第9800号
テンポス不動産 (株)テンポスフィナンシャルトラスト
※連合隊は物件情報の精度向上に努めています:「物件情報に誤りがある」「成約済みである」などお気付きの点がございましたらこちらよりご連絡ください。
写真枚数:30枚
きずなぽーとわたり
荒浜郵便局
鳥の海公園
物件・資金・M&Aの専門チーム|理想の店舗・事業運営をトータルに支えます
私たちは、物件探しから資金の準備、さらには事業の引き継ぎ(M&A)まで、事業を営む皆様を支える専門部隊です。飲食業をはじめ、様々な業種のサポートで培った確かなノウハウで、お一人おひとりのご希望に合わせた最適なプランをご提案します。実務に長けたプロ集団が、皆様の良きパートナーとして課題解決まで共に歩みます。