黒川郡大郷町中村 すし店居抜き売買物件! ☆浴室あり居住用リフォーム可♪
ここに注目!大郷町中村、創業40年のすし店売買物件! 諸条件ご相談下さい♪
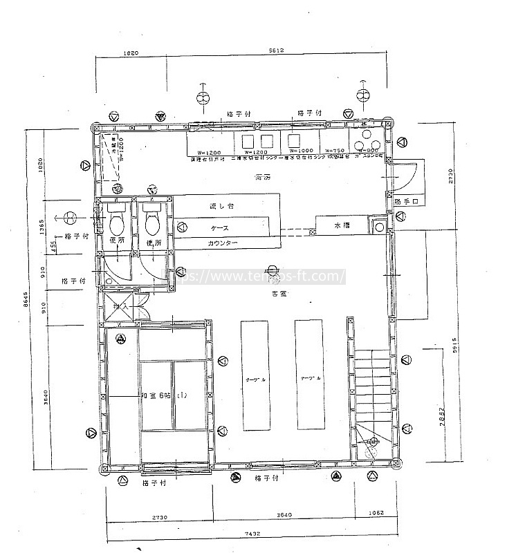
この物件は 寿司屋 の居抜き物件です。
現状の設備が残されたまま取引されるため、初期費用を抑え速やかに事業を開始できるメリットがあります。
| 価格 |
1,000万円
|
|---|---|
| 建物面積 | 128.48m² (38.86坪) |
| 土地面積 | 86m² (26.01坪)(公簿) |
| 住所 | 宮城県黒川郡大郷町中村字屋舗1-24 |
| 交通 | |
| 築年月 | 築26年(1999年7月) |
| 駐車場 |
あり
|
| 用途地域 |
|
販売状況、見学、詳細を知りたい方はこちら!
お電話の際は「連合隊の物件」とお伝えください。
情報掲載期限:あと23日(更新日 2026/4/23)
- 物件写真・概要
- 周辺地図
-
販売状況、見学、詳細を知りたい方はこちら!
おすすめポイント
- 駐車場あり
- 袖看板あり
- 出店するなら…この業種がおすすめ!
- 飲食全般(重飲食含む)

- 喫茶・カフェ(軽飲食)

- バー・クラブ・スナック

- 小売・物販

- 美容・健康・介護

- 医療

- 教育・スクール

- 事務所

- アミューズメント

物件概要
建物の階建 地上2階建 総戸数 主要採光面 構造 木造 居抜き情報 [寿司屋] の居抜き接道状況 角地 都市計画区域 非線引区域 私道負担 なし 地目/地勢 宅地 地勢:平坦 国土法届出 不要 土地権利 所有権 用途地域 - 無指定(建ぺい率:70% / 容積率:200%)
引渡し 相談 現況 空き 取引態様 仲介 物件No 仲介手数料概算 不動産会社へお問合せください 設備・特徴 - 幹線道路沿い
- ガス設備
- 給排水設備
- エアコン付
- ビルトインエアコン
- 男女別トイレ
- 袖看板あり
備考 ※現況有姿でのお引渡しとなります。 ※価格応相談 主な周辺施設色がついているアイコンをクリックすると、本物件までの道順を見ることができます。
-
ホームページはこちら
国土交通大臣 (1) 第9800号
テンポス不動産 (株)テンポスフィナンシャルトラスト
※連合隊は物件情報の精度向上に努めています:「物件情報に誤りがある」「成約済みである」などお気付きの点がございましたらこちらよりご連絡ください。
写真枚数:29枚
大郷郵便局
薬王堂宮城大郷店
コメリハード&グリーン大郷店
セブンイレブン大郷町店
物件・資金・M&Aの専門チーム|理想の店舗・事業運営をトータルに支えます
私たちは、物件探しから資金の準備、さらには事業の引き継ぎ(M&A)まで、事業を営む皆様を支える専門部隊です。飲食業をはじめ、様々な業種のサポートで培った確かなノウハウで、お一人おひとりのご希望に合わせた最適なプランをご提案します。実務に長けたプロ集団が、皆様の良きパートナーとして課題解決まで共に歩みます。