岐阜県岐阜市 1棟アパート
ここに注目!岐阜県岐阜市に位置するRC造の一棟アパートです。外装・内装ともに修繕が施されており、築年数は経過していますが、建物・共用部ともに管理が行き届いた印象を受ける物件です。 閑静な住宅街に立地しているため、住環境を重視する単身者を中心に安定した賃貸需要が見込め、これまで基本的に満室稼働を維持してきました。 空室が出た際も比較的早期に入居が決まりやすく、運用面での安心感があります。 大規模な初期修繕リスクを抑えつつ、引き続き家賃収入を見込める点から、長期保有を前提とした投資物件として検討しやすい一棟アパートです。
| 価格 |
3,300万円
利回り9.05%
満室時想定年収:298万8,000円
|
|---|---|
| 住所 | 岐阜県岐阜市黒野356-7 |
| 交通 | 糸貫駅(徒歩68分)|モレラ岐阜駅(徒歩70分)|岐阜駅(車で20分)|「黒野城跡前」停(徒歩3分) |
| 築年月 | 築54年(1971年11月) |
| 構造 | 鉄筋コンクリート(RC)造 |
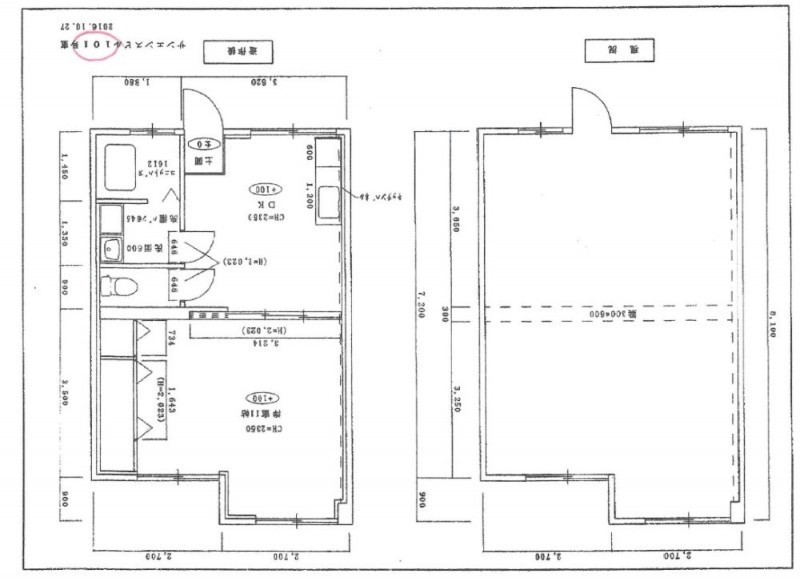
| 面積 | 建物:228.11m² (69坪)/ 土地:271.74m² (82.2坪)(公簿) 専有:29.35m² (8.87坪) |
| 現況 | 総戸数6戸 |
販売状況、見学、詳細を知りたい方はこちら!
お電話の際は「連合隊の物件」とお伝えください。
情報掲載期限:あと30日(更新日 2025/12/20)
- 物件写真・概要
- 周辺地図
-
販売状況、見学、詳細を知りたい方はこちら!
交通色がついているアイコンをクリックすると、本物件までの道順を見ることができます。
物件概要
建物の階建 地上2階建 間取り 駐車場 駐車場台数:3台接道状況 都市計画区域 市街化区域 用途地域 - 第1種住居地域(建ぺい率:60% / 容積率:200%)
私道負担 なし 地目/地勢 宅地 国土法届出 不要 土地権利 所有権 引渡し 相談 取引態様 仲介 物件No V0085 仲介手数料概算 不動産会社へお問合せください 設備・特徴 備考 一棟売り・収益物件 *評価額:1085万3011円 *売主契約不適合責任免責 *売主による確定測量実施せず *専有面積概算*駐車場3台 *土地建物割合売主指定*司法書士売主指定 *土地2640万円 建物税抜き600万円 消費税60万円 *プロパン継承必須*旧耐震基準 *現況利回り:8.83% -
※連合隊は物件情報の精度向上に努めています:「物件情報に誤りがある」「成約済みである」などお気付きの点がございましたらこちらよりご連絡ください。
写真枚数:10枚
弊社は、不動産投資専門の不動産会社です(エリアは日本全国)
弊社は、不動産投資専門の不動産会社です(エリアは日本全国) 皆様方のご支援もあり収益物件専門の会社を設立に至りました。最新不動産投資・収益物件・売りアパート・投資用ビル・投資用マンション・駐車場投資・土地売買情報を常時豊富に仕入れをしています。 ★ABEMA番組「カンニング竹山のイチバン研究所」で取り上げられました!【YouTube】https://youtu.be/agDPwtG_Q9Y