大阪府大阪市中央区!融資相談受付中!中国語&EngOK!/店舗付住宅
ここに注目!※占有面積はおおよその値です。 ★★★オススメポイント★★★★★★★★★★★★★ 駅近5分以内! ★★★★★★★★★★★★★★★★★★★★★★★★ 【交通】 ●大阪メトロ御堂筋線 なんば駅 徒歩4分 ●大阪メトロ四つ橋線 なんば駅 徒歩4分 English available
| 価格 |
1億8,000万円
|
|---|---|
| 住所 |
大阪府大阪市中央区西心斎橋2丁目
(詳細な所在地は不動産会社にお問合せください) |
| 交通 | なんば駅(徒歩4分)|なんば駅(徒歩4分) |
| 築年月 | |
| 構造 | 軽量鉄骨造 |
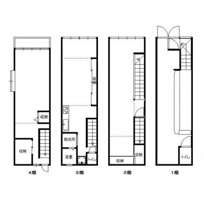
| 面積 | 建物:123.08m² (37.23坪)/ 土地:37.05m² (11.2坪) |
| 現況 | 賃貸中 |
販売状況、見学、詳細を知りたい方はこちら!
お電話の際は「連合隊の物件」とお伝えください。
情報掲載期限:あと17日(更新日 2025/11/25)
- 物件写真・概要
- 周辺地図
-
販売状況、見学、詳細を知りたい方はこちら!
おすすめポイント
- 賃貸中
- 駅徒歩5分以内
交通
- なんば駅大阪メトロ四つ橋線、大阪メトロ千日前線、大阪メトロ御堂筋線、阪神なんば線、近鉄難波線徒歩4分
- なんば駅大阪メトロ四つ橋線、大阪メトロ千日前線、大阪メトロ御堂筋線、阪神なんば線、近鉄難波線徒歩4分
物件概要
建物の階建 地上4階建 主要採光面 構造 軽量鉄骨造 間取り ワンルーム 専有面積 部屋の間取り ワンルームワンルーム 駐車場 接道状況 都市計画区域 その他(市街化) 用途地域 - 商業地域(建ぺい率:80% / 容積率:500%)
私道負担 地目/地勢 宅地 国土法届出 土地権利 所有権 居抜き情報 引渡し 相談 取引態様 仲介 物件No 251125-saka-10 仲介手数料概算 不動産会社へお問合せください 設備・特徴 備考 収益物件 -
ホームページはこちら東京都知事 (2) 第97410号
(株)リタ不動産〒107-0052
東京都港区赤坂3-20-6
パシフィックマークス赤坂見附 4階TEL:03-5357-7757
FAX:03-5357-7758
営業時間:9:30~20:00
定休日:毎週 土曜・日曜
※連合隊は物件情報の精度向上に努めています:「物件情報に誤りがある」「成約済みである」などお気付きの点がございましたらこちらよりご連絡ください。
写真枚数:1枚
不動産投資、収益不動産ならリタ不動産へお任せください!
収益不動産の売買に特化しており、ネットに掲載できない物件など豊富に取り揃えております。 また、購入、融資、売却、賃貸、賃貸管理などトータルマネージメントさせて頂きます。 お気軽にお問合せください。