



![]() |
|
| 種別 | |
|---|---|
| 物件no. | |
| 物件名 | 日神パレステージ宇部 |
価格
|
![]() ![]() ![]() ![]()
|
| 仲介手数料概算 |
不動産会社へお問合せください
その他にこんな諸費用が必要となります |
| 満室時想定年収 |
38万4,000円
|
| 満室時想定利回り | 19.39% (計算式はこちら) |
| 住所 | 山口県宇部市東新川町6-11![]() |
| 交通 | 駅 徒歩5分(約325m) / 駅 徒歩13分(約999m) |
| 学区 | |
|
【 この地域にはこんな物件もあります 】
【 この地域で過去に取引されたのはこんな物件です 】 | |
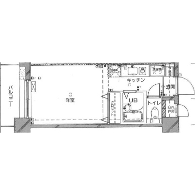
| 専有面積 | 22.05m² 【6.67坪】 |
| バルコニー面積 | 4.26m² 【1.28坪】 |
| 構造 | 鉄筋コンクリート(RC)造 7階建 4階 |
| 築年月 | 築35年 (1990年06月) |
| 間取り | ワンルーム |
| 土地権利 | 所有権 |
| 都市計画 | |
| 用途地域 | |
| 建ぺい率 | |
| 容積率 | |
| 地目 | |
| 接道状況 | |
| 【 ご参考までにこの地域の土地価格一覧です 】 | |
| 駐車場 | |
| 設備・特徴 | エレベーター 駐輪場 室内洗濯機置場 バス/トイレ別 エアコン付 オートロック |
| 備考 | |
| 管理費 | 5,060円 |
| 共益費 | |
| 積立金 | 3,450円 |
| その他費用1 | |
| その他費用2 | |
| 取引態様 | 仲介 |
| 現況 | 賃貸中 |
| 引渡し | 相談 |
| 更新年月日 | 2026年04月09日 |
| 広告有効期限 | 2026年05月09日(次回更新予定日) |
|
この物件の情報を 携帯へ送る |
東京都知事 (4) 第88775号
ピタットハウス 渋谷店 RISE ON(株)
〒150-0043 東京都渋谷区道玄坂1丁目19-2 ワイズビル TEL : 03-6416-9455 FAX : 03-6455-1562 お電話の際は「連合隊の物件」と お伝えください
|
|
−当社からのお知らせ−当社では、日本全国の投資用ワンルームマンションの売買仲介を得意にしております。 物件をお探しの方、または売却をお考えの方、どんな些細なご質問でもお気軽にお問い合わせください。 | |
※ポインタの位置は実際の場所とは異なる場合がございますので情報掲載元にご確認ください。