



![]() |
|
| 種別 | |
|---|---|
| 物件no. | |
| 物件名 | セザール松島 |
価格
|
![]() ![]() ![]() ![]()
|
| 仲介手数料概算 |
不動産会社へお問合せください
その他にこんな諸費用が必要となります |
| 満室時想定年収 |
66万円
|
| 満室時想定利回り | 17.36% (計算式はこちら) |
| 住所 | 宮城県宮城郡松島町高城三居山二54-55![]() |
| 交通 | 駅 徒歩2分(約122m) |
| 学区 | |
|
【 この地域にはこんな物件もあります 】
【 この地域で過去に取引されたのはこんな物件です 】 | |
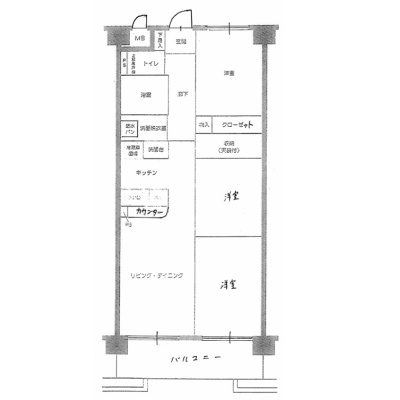
| 専有面積 | 56.16m² 【16.98坪】 |
| バルコニー面積 | 8.23m² 【2.48坪】 |
| 構造 | 鉄筋コンクリート(RC)造 8階建 1階 |
| 築年月 | 築30年 (1995年08月) |
| 間取り | 3LDK |
| 土地権利 | 所有権 |
| 都市計画 | |
| 用途地域 | |
| 建ぺい率 | |
| 容積率 | |
| 地目 | |
| 接道状況 | |
| 【 ご参考までにこの地域の土地価格一覧です 】 | |
| 駐車場 | |
| 設備・特徴 | エレベーター 駐輪場 バイク置き場 室内洗濯機置場 バス/トイレ別 独立洗面台 温水洗浄トイレ |
| 備考 | ※現在空室の為、想定賃料55,000円 南向き |
| 管理費 | 8,000円 |
| 共益費 | |
| 積立金 | 9,550円 |
| その他費用1 | 水道基本料(月額):3,960円 |
| その他費用2 | |
| 取引態様 | 仲介 |
| 現況 | 空き |
| 引渡し | 相談 |
| 更新年月日 | 2025年12月12日 |
| 広告有効期限 | 2026年01月11日(次回更新予定日) |
|
この物件の情報を 携帯へ送る |
東京都知事 (4) 第88775号
ピタットハウス 渋谷店 RISE ON(株)
〒150-0043 東京都渋谷区道玄坂1丁目19-2 ワイズビル TEL : 03-6416-9455 FAX : 03-6455-1562 お電話の際は「連合隊の物件」と お伝えください
|
|
−当社からのお知らせ−当社では、日本全国の投資用ワンルームマンションの売買仲介を得意にしております。 物件をお探しの方、または売却をお考えの方、どんな些細なご質問でもお気軽にお問い合わせください。 | |
※ポインタの位置は実際の場所とは異なる場合がございますので情報掲載元にご確認ください。