(I-1075-01)福岡県福岡市 一棟木造アパート
ここに注目!■想定利回り:6.00%■現状利回り:6.00%2017年築とまだ築浅のデザイナーズ仕様で、外観・内装ともに現代的で全室ロフト付き1Kの満室稼働中!築年数が浅いため、修繕リスクも抑えやすく、長期的に安定収益を期待できる点も魅力です。安定した収益を確保できる物件です。西鉄天神大牟田線「高宮」駅まで徒歩11分と、都心へのアクセスも良好。飲食店・コンビニ・スーパー・ドラッグストアなど、身近に生活利便施設も整っています。日常生活に便利な環境と安定した入居状況を兼ね備えた、安心してご検討いただける物件です。
| 価格 |
6,230万円
利回り6%
満室時想定年収:376万8,000円
|
|---|---|
| 住所 | 福岡県福岡市南区野間1丁目23-18 |
| 交通 | 高宮駅(徒歩11分) |
| 築年月 | 築8年(2017年8月) |
| 構造 | 木造 |
| 面積 | 建物:131.48m² (39.77坪)/ 土地:134.11m² (40.56坪)(公簿) 専有:最小20.93m² (6.33坪)~最大22.93m² (6.93坪) |
| 現況 | 総戸数6戸 |
販売状況、見学、詳細を知りたい方はこちら!
お電話の際は「連合隊の物件」とお伝えください。
新着 情報掲載期限:あと30日(更新日 2026/2/21)
- 物件写真・概要
- 周辺地図
-
販売状況、見学、詳細を知りたい方はこちら!
おすすめポイント
- 築10年以内
交通色がついているアイコンをクリックすると、本物件までの道順を見ることができます。
物件概要
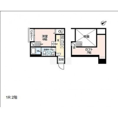
建物の階建 地上2階建 間取り 1K 駐車場 接道状況 都市計画区域 市街化区域 用途地域 - 1種住居(建ぺい率:60% / 容積率:200%)
私道負担 地目/地勢 宅地 国土法届出 土地権利 所有権 引渡し 相談 取引態様 仲介 物件No B02265-004568 仲介手数料概算 不動産会社へお問合せください 設備・特徴 - その他インターネット
- その他:収納スペース・公営水道
備考 ■想定利回り:6.00%■現状利回り:6.00%2017年築とまだ築浅のデザイナーズ仕様で、外観・内装ともに現… 収益物件 一棟売り 主な周辺施設
- 飛鳥会館約280m(徒歩4分)
- 高宮西鉄名店街約800m(徒歩10分)
- 福岡市立南体育館約970m(徒歩13分)
- うどんウエスト野間店約230m(徒歩3分)
- セカンドストリート高宮通り店約290m(徒歩4分)
- サニー野間店約520m(徒歩7分)
- ドラッグ新生堂高宮5丁目店約640m(徒歩8分)
- ファミリーマート福岡高宮通り店約320m(徒歩4分)
- ベスト電器大橋店約1.1km(徒歩13分)
- 野間緑地約300m(徒歩4分)
-
ホームページはこちら
東京都知事(1) 第109690号
テックプロパティジャパン(株)- 加入団体
- (公社)全日本不動産協会
- 保証協会
- (公社)不動産保証協会
- 公正取引協議会
- (公社)首都圏不動産公正取引協議会
※連合隊は物件情報の精度向上に努めています:「物件情報に誤りがある」「成約済みである」などお気付きの点がございましたらこちらよりご連絡ください。
写真枚数:22枚
1F1
1F2
1F3
2F1
2F2
2F3
テクノロジーの力で、地方と都市部の架け橋に。
AI・ITなどのテクノロジーを武器に、不動産の可能性を広げ、投資・管理・売却・相続までをシームレスにつなぎます。 誰もが、もっと簡単に、もっと確信を持って、不動産に向き合える世界をつくりたい。 経験や情報格差、都会や地方の場所に左右されず、正しく、賢く、スピーディに選べる時代へ。 そして、日本の地方物件のポテンシャルを引き上げ、地方と都市部の格差を埋めていきます。