(O-1017-01) 静岡県田方郡函南町 区分RCマンション
ここに注目!静岡県田方郡函南町上沢、高台に佇むRC造の低層リゾート区分マンション!設計者は建築界の巨匠・菊竹清訓氏! 販売価格は100万円と非常にリーズナブルで、初めての不動産投資にもおすすめの物件です。周辺は自然豊かで落ち着いた住環境が広がり、週末の別荘やセカンドハウスとしての利用にもおすすめです。 また、函南町は伊豆エリアへのアクセスも良く、観光や温泉などを楽しめる立地です。静かでゆったりとした時間を過ごしたい方や、低コストで資産を持ちたい方にぴったりの物件といえます。 用途も多彩で、賃貸運用による投資用物件としてはもちろん、リノベーションして趣味の拠点や隠れ家的な住まいにすることも可能です。 RC造ならではの耐久性があり、長期的な活用が見込めます。 手軽に不動産を所有したい方にぜひおすすめの一件です。
| 価格 |
100万円
利回り36%
|
|---|---|
| 住所 | 静岡県田方郡函南町上沢956-1 |
| 交通 | 函南駅(徒歩36分)道順を見る |
| 築年月 | 築51年(1974年6月) |
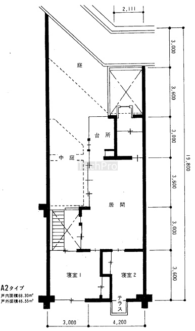
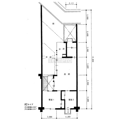
| 間取・専有 |
その他(64.58m²)
|
| 所在階 | 4階(PH309) / 地上6階建 |
| 現況 | 空き |
販売状況、見学、詳細を知りたい方はこちら!
お電話の際は「連合隊の物件」とお伝えください。
情報掲載期限:あと6日(更新日 2025/11/12)
- 物件写真・概要
- 周辺地図
-
販売状況、見学、詳細を知りたい方はこちら!
おすすめポイント
- 利回り35%超
- 南向き
- 2階以上
- 駐車場あり
交通色がついているアイコンをクリックすると、本物件までの道順を見ることができます。
物件概要
土地権利 所有権 主要採光面 南 構造 鉄筋コンクリート(RC)造 駐車場 あり管理形態 全部委託 管理組合 指定なし 引渡し 相談 管理人 取引態様 仲介 物件No 仲介手数料概算 不動産会社へお問合せください 設備・特徴 備考 主な周辺施設色がついているアイコンをクリックすると、本物件までの道順を見ることができます。
-
ホームページはこちら
東京都知事 (1) 第109690号
テックプロパティジャパン(株)- 加入団体
- (公社)全日本不動産協会
- 保証協会
- (公社)不動産保証協会
- 公正取引協議会
- (公社)首都圏不動産公正取引協議会
※連合隊は物件情報の精度向上に努めています:「物件情報に誤りがある」「成約済みである」などお気付きの点がございましたらこちらよりご連絡ください。
写真枚数:6枚
不動産とテクノロジーの融合で新たな価値を提供します
弊社は、AIなどのテクノロジーも駆使して、お客様にとって最良の方法をご提案いたします。 経験豊富なスタッフが、お客様がより効果的にビジネス・資産形成ができるようにサポートいたします。