【本通1丁目】 平屋×土地×ウィル②
ここに注目!【平屋×土地×ウィル】本通1丁目◆規格・注文住宅建築棟数1000棟達成の当社がご提案するのは「土地+建築=ワンストップの家づくり」◆家づくりを考えはじめると、多くの方が感じるのは「土地探しが大変・・・」「何から進めればいいかわからない・・・」という不安。私たちウィルは建築会社であり不動産会社でもあるからこそ、土地探し→設計→建築→アフターサポートをワンストップでサポートすることができます。さらにウィルの自社保有の土地なら ①仲介手数料②測量費(通常約30万~50万円程度)③水道引込費(通常約35万~)④敷地調査費用(約10万円~)⑤万一埋設物が発見された場合の撤去費用が、全てゼロ🙌 土地購入後の思わぬ出費を心配せず、安心してご検討いただけます。◆こちらの平屋プランは生活の中心がワンフロアにまとまっており家事も移動もスムーズ♪コンパクトに見えて実は広がりを感じられるそんな設計です♪もちろんご家族のライフスタイルに合わせてアレンジも可能です♪外構工事・杭工事等の詳細はお打合せにて。◆問い合わせフォームまたは不動産企画ウィル(0138-35-6235)までお気軽にご連絡ください!
ウィルのホームページです!施行事例多数掲載中♪ぜひご覧ください♪
この物件は、仲介手数料がかかりません。
この物件の売主は、情報を掲載している不動産会社です。仲介物件ではないため、仲介手数料は発生しません。
| 価格 |
3,125万円
|
|---|---|
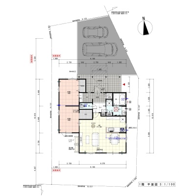
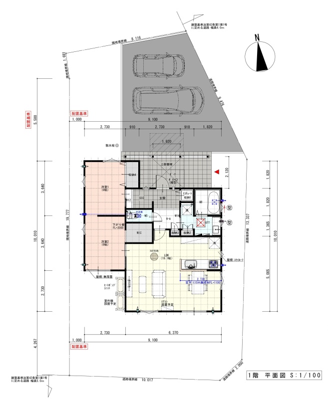
| 建物面積 | 77.39m² (23.41坪) |
| 土地面積 | 246.52m² (74.57坪)(公簿) |
| 間取り | 2LDK |
| 住所 | 北海道函館市本通1-22-25 |
| 交通 | 函館バス「本通1丁目前」停 (徒歩2分)|五稜郭公園前駅(徒歩21分)道順を見る |
| 築年月 | |
| 駐車場 |
あり
|
【WEB面談可】
販売状況、見学、詳細を知りたい方はこちら!
お電話の際は「連合隊の物件」とお伝えください。
新着 情報掲載期限:あと27日(更新日 2026/1/24)
- 物件写真・概要
- 周辺地図
-
▼クリックで左の拡大画像が変わります。 すべての写真を拡大
【WEB面談可】
販売状況、見学、詳細を知りたい方はこちら!おすすめポイント
- 駐車場あり
- 角地
- 南向き
- 都市ガス
- 追い焚き風呂
- 平屋
- 土地付き提案住宅
- 近くて便利!徒歩5分以内にある施設
- 3分
3分- 周辺施設を地図で確認
交通色がついているアイコンをクリックすると、本物件までの道順を見ることができます。
- 五稜郭公園前駅函館市電2系統、函館市電5系統徒歩21分(約1.7km)
- 函館バス「本通1丁目前」停 徒歩2分
物件概要
建物の階建 地上1階建 主要採光面 南 構造 木造(在来工法) 接道状況 角地 - 南側幅5.00mの公道に10.01m接道
- 東側幅4.00mの公道に13.33m接道
都市計画区域 市街化区域 私道負担 なし 地目/地勢 宅地 地勢:平坦 国土法届出 不要 土地権利 所有権 用途地域 - 第2種中高層住居専用地域(建ぺい率:60% / 容積率:200%)
引渡し 相談 現況 施工業者 株式会社不動産企画ウィル 建築確認番号 第HJK241150号 取引態様 売主 物件No 仲介手数料概算 取引態様が売主なので仲介手数料は不要です 設備・特徴 - 角地
- 整形地
- 閑静な住宅街
- 土地付き提案住宅
- 耐震
- 日当り良好
- 照明器具付
- フローリング
- ウォークインクローゼット
- シューズインクローゼット
- 全居室収納あり
- 温水洗浄トイレ
- 追い焚き風呂
- 浴室に窓
- 浴室1坪以上
- コンロ3口以上
- システムキッチン
- 食器洗乾燥機
- 都市ガス
- モニタ付インターホン
- 平屋
備考 学区色がついているアイコンをクリックすると、本物件までの道順を見ることができます。
主な周辺施設色がついているアイコンをクリックすると、本物件までの道順を見ることができます。
-
ホームページはこちら
北海道知事 渡島(5) 第1049号
(株)不動産企画ウィル 【WEB面談可】- 加入団体
- (公社)全日本不動産協会
- 保証協会
- (公社)不動産保証協会
- 公正取引協議会
- (一社)北海道不動産公正取引協議会
※連合隊は物件情報の精度向上に努めています:「物件情報に誤りがある」「成約済みである」などお気付きの点がございましたらこちらよりご連絡ください。
写真枚数:12枚
外観イメージパース
内観イメージ
内観イメージ
内観イメージ
内観イメージ
内観イメージ
内観イメージ
内観イメージ
内観イメージ
内観イメージ
内観イメージ
皆様に愛されおかげさまで創業22年!函館エリアで土地探し~新築住宅をお考えならウィルへ!
函館エリアで創業22年目、注文住宅やゼロキューブなどデザイン提案力と長期優良住宅基準標準仕様にこだわる家づくりで、10年連続新築棟数エリアNo.1を獲得!お陰様で実績棟数1000棟超えを達成しました。