五稜郭町【ミサワホーム造】中古住宅
ここに注目!函館五稜郭病院近くのミサワホームさん施工の中古住宅です!南向きでカーポートやウッドデッキ付きで、玄関スロープまで付いております!室内も広々していて吹抜けが開放的なお家ですし、高齢者の方に嬉しい間取りと設備になっております!現在荷物がありますが売主様にて撤去してお引き渡しいたしますので、少々お時間いただくこともあるかと思いますのでご了承いただけますと幸いです!エアコン付きで経済的な都市ガスのシステムキッチンに灯油ボイラーの灯油セントラル暖房です!1階にも2階にもトイレがありますしどちらも温水洗浄暖房便座になっております!お風呂も窓付きで明るく追い炊き機能ですよ!なんと言っても立地がいいこの場所で新しい生活はいかがでしょうか?気になる方には詳しい資料お渡しいたしますので、是非お気軽にお問い合わせいただければと思います!リモート案内も可能ですのでお気軽にご相談下さい♬是非、お問い合わせお待ちしております! ★ピタットハウス函館店 ㈱三建不動産:0138-54-9377★
| 価格 |
3,500万円
|
|---|---|
| 建物面積 | 119.1m² (36.02坪) |
| 土地面積 | 242.64m² (73.39坪)(公簿) |
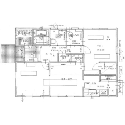
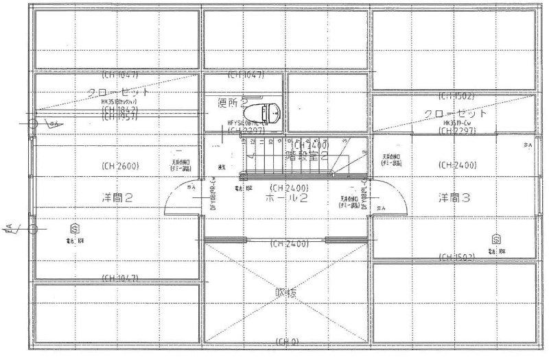
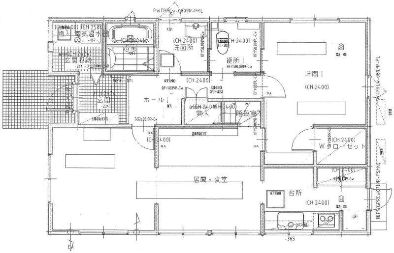
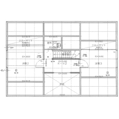
| 間取り | 3LDK1階:LDK20.25帖 洋室9.5帖 / 2階:洋室8帖 洋室6帖 |
| 住所 | 北海道函館市五稜郭町40-15-1 |
| 交通 | 函館バス 「柏野小学校裏」停(徒歩2分)|杉並町駅(徒歩7分)道順を見る |
| 築年月 | 築14年(2011年5月) |
| 駐車場 |
あり 駐車可能台数:2台
|
【WEB面談可】
販売状況、見学、詳細を知りたい方はこちら!
お電話の際は「ホームページを見て」とお伝えください。
情報掲載期限:あと14日(更新日 2025/11/21)
- 物件写真・概要
- 周辺地図
-
▼クリックで左の拡大画像が変わります。 すべての写真を拡大
【WEB面談可】
販売状況、見学、詳細を知りたい方はこちら!おすすめポイント
- 駐車2台以上可
- 南向き
- 都市ガス
- 追い焚き風呂
- 近くて便利!徒歩5分以内にある施設
- 3分
3分- 3分
3分- 3分
3分- 周辺施設を地図で確認
交通色がついているアイコンをクリックすると、本物件までの道順を見ることができます。
- 杉並町駅函館市電5系統、函館市電2系統徒歩7分(約523m)
- 函館バス 「柏野小学校裏」停徒歩2分(約160m)
物件概要
建物の階建 地上2階建 主要採光面 南 構造 木造 バルコニー あり- ウッドデッキ・テラス
接道状況 一方 - 南側幅7.30mの公道に10.50m接道
都市計画区域 市街化区域 私道負担 地目/地勢 宅地 地勢:平坦 国土法届出 土地権利 所有権 用途地域 - 第2種中高層住居専用地域(建ぺい率:60% / 容積率:200%)
引渡し 相談 現況 入居中 施工業者 ミサワホーム株式会社 取引態様 仲介 物件No 仲介手数料概算 122万1,000円(金額は概算です。正確な金額は不動産会社へお問合せ下さい) 設備・特徴 - 整形地
- 閑静な住宅街
- 物置
- 日当り良好
- 照明器具付
- 吹き抜け
- ウォークインクローゼット
- シューズインクローゼット
- トイレ2ヶ所以上
- 温水洗浄トイレ
- シャワー付洗面化粧台
- 追い焚き風呂
- 浴室に窓
- 浴室1坪以上
- コンロ3口以上
- システムキッチン
- 都市ガス
- エアコン付
- 灯油暖房
- セントラル空調
- 灯油ボイラー
- モニタ付インターホン
- BSアンテナ
備考 ■地番55-10 ■荷物は売主様の負担にて引き渡しまでに撤去いたします ■間取・設備については現況を優先させて頂きます ■契約不適合責任免責 学区色がついているアイコンをクリックすると、本物件までの道順を見ることができます。
主な周辺施設色がついているアイコンをクリックすると、本物件までの道順を見ることができます。
- セブンイレブン函館五稜郭病院前店約237m(徒歩3分)
- スーパー魚長本通店約1.3km(徒歩16分)
- サンドラッグ松陰店約427m(徒歩6分)
- シエスタハコダテ約733m(徒歩10分)
- 認定こども園函館ちとせ幼稚園約576m(徒歩8分)
- 市立函館高校約627m(徒歩8分)
- 社会福祉法人函館厚生院函館五稜郭病院約238m(徒歩3分)
- 五稜郭緑地約967m(徒歩13分)
- 北陸銀行五稜郭支店約545m(徒歩7分)
- 函館市中央図書館約980m(徒歩13分)
対象となりうる支援制度
函館市
支援制度に関するお問合せは、不動産会社ではなく、自治体の公式ページまたは担当課までご確認ください。
上記リンクは、支援制度の対象条件を一定以上満たした物件に対し自動表示しています。
-
ホームページはこちら
北海道知事 渡島(9) 第722号
(株)三建不動産 【WEB面談可】- 加入団体
- (公社)北海道宅地建物取引業協会、(一社)全国賃貸不動産管理業協会、(公財)日本賃貸住宅管理協会
- 保証協会
- (公社)全国宅地建物取引業保証協会
- 公正取引協議会
- (一社)北海道不動産公正取引協議会
写真枚数:27枚
外観!
1階 間取図!
2階 間取図!
外観②!
外観③!
玄関スロープ!
ウッドデッキ!
物置!
室内玄関!
灯油ボイラー!
TVインターホン!
ダイニングスペース!
システムキッチン!
エアコン!
1階トイレ!
シャンプードレッサー!
バスルーム!
2階踊り場!
電動物干しざお!
2階トイレ!
2階8帖洋室!
2階6帖洋室!
1階9.5帖洋室!
1階ウォークインクローゼット!
巴中学校!
五稜郭公園!
函館市中央図書館!



おかげさまで創業45年!不動産のことなら三建不動産へ是非ご相談下さい!
●営業時間● 平日:9:30~19:00 土曜・祝日:9:30~18:00 日曜:定休日 【売買物件の無料査定、買取相談も行っておりますので、不動産全般ご相談下さい!】 是非ご連絡お待ちしております!