人見町【二世帯型】中古住宅
ここに注目!【お値下げいたしました!】コープさっぽろひとみ店さん徒歩3分の買い物便利な人見町の二世帯型中古住宅です!なんと言っても便利な立地でスーパーは他にも魚長さんやスーパーアークスさんなども近くて便利です!ドラッグストアや百均のお店も近く、バス停も徒歩2分と交通も便利です!車種にもよりますが駐車は3台可能で、北東角地のゆったりとしたお家ですよ!南側にお庭を設けてますので陽当たりも良好で、経済的な都市ガスのエコジョーズ物件!暖房は安心のセントラル暖房に1階洋室だけですがエアコンも付いております!トイレには1階も2階も独立手洗い付きで、温水洗浄暖房便座になっております!キッチンはガスのシステムキッチンで、1階は使い勝手の良いコの字型の大型キッチンです!他にも大型の納戸や2階にはバルコニーも付いておりますし、1階のダイニングスペースはゆったりとした食事の時間を演出してくれそうですね!現在ご入居中ですがご予約いただければ内覧可能ですので、お気軽にお問い合わせいただければと思います!是非一度ご覧になっていただきたい物件ですので、是非お問い合わせお待ちしております!!
| 価格 |
2,680万円
|
|---|---|
| 建物面積 | 248.92m² (75.29坪) |
| 土地面積 | 293.91m² (88.9坪)(公簿) |
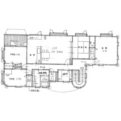
| 間取り | 二世帯型1階:LDK21帖 洋室9帖 和室8帖 和室6帖 S5.9帖 / 2階:LDK20帖 洋室10帖 和室6帖 洋室6帖 洋室5.9帖 |
| 住所 | 北海道函館市人見町17-7 |
| 交通 | 函館バス「人見町」停 (徒歩2分)|杉並町駅(徒歩12分) |
| 築年月 | 築28年(1997年5月) |
| 駐車場 |
あり 駐車可能台数:3台
|
【WEB面談可】
販売状況、見学、詳細を知りたい方はこちら!
お電話の際は「ホームページを見て」とお伝えください。
情報掲載期限:あと25日(更新日 2025/12/2)
- 物件写真・概要
- 周辺地図
-
▼クリックで左の拡大画像が変わります。 すべての写真を拡大
-
外観!
-
1階 間取図!
-
2階 間取図!
-
外観②!
-
外観③!
-
裏のお庭です!
-
裏のお庭!ウッドデッキは撤去しております。
-
散水栓と外電源です!
-
階段下を利用した物置です!
-
スロープが付いた外玄関です!
-
内玄関も広々!大きなシューズクローゼットがあります!
-
ゆったりとした1階廊下です!
-
1階 リビング!
-
1階 ダイニングスペース!
-
1階 キッチン!コの字型のシステムキッチンです!
-
1階 9帖洋室にはエアコン付きです!
-
1階 トイレは窓と温水洗浄便座と手洗い付きです!
-
1階 ユーティリティ!
-
1階 バスルーム!1坪で広々しております!
-
室内階段吹き抜けです!
-
2階 リビング!
-
2階 システム対面キッチン!
-
2階 バルコニー!
-
2階 和室!
-
2階 5.9帖洋室!
-
2階 6帖洋室はロフトと天窓付きです!
-
2階 10帖洋室!
-
2階 トイレも窓と温水洗浄便座と手洗い付きです!
-
2階 ユーティリティ!
-
2階 バスルーム!窓付きです!
【WEB面談可】
販売状況、見学、詳細を知りたい方はこちら!おすすめポイント
- 駐車2台以上可
- 角地
- 南向き
- 都市ガス
- 近くて便利!徒歩5分以内にある施設
- 3分
3分- 3分
3分- 2分
2分- 3分
3分- 周辺施設を地図で確認
交通色がついているアイコンをクリックすると、本物件までの道順を見ることができます。
- 杉並町駅函館市電5系統、函館市電2系統徒歩12分(約922m)
- 函館バス「人見町」停 徒歩2分(約160m)
物件概要
建物の階建 地上2階建 主要採光面 南 構造 木造 バルコニー あり(6.62m²)- バルコニー南向き
接道状況 角地 - 北側幅6.00mの公道に17.89m接道
- 東側幅5.40mの公道に15.53m接道
都市計画区域 市街化区域 私道負担 なし 地目/地勢 宅地 地勢:平坦 国土法届出 不要 土地権利 所有権 用途地域 - 第2種中高層住居専用地域(建ぺい率:60% / 容積率:200%)
引渡し 相談 現況 入居中 建築確認番号 第1611号 取引態様 仲介 物件No 仲介手数料概算 95万400円(金額は概算です。正確な金額は不動産会社へお問合せ下さい) 修繕履歴 - 2015年5月頃に屋根・外壁をリフォームしています。施工内容:屋根と外壁塗装
設備・特徴 - 角地
- 整形地
- 閑静な住宅街
- 物置
- 庭が広い(10坪以上)
- 玄関フード
- 日当り良好
- 照明器具付
- 3面採光
- 出窓
- 二重サッシ
- 納戸・トランクルーム
- 床下収納
- シューズボックス
- 全居室収納あり
- トイレ2ヶ所以上
- 温水洗浄トイレ
- シャワー付洗面化粧台
- 浴室に窓
- 浴室1坪以上
- コンロ3口以上
- システムキッチン
- カウンターキッチン
- 都市ガス
- エアコン付
- ガス暖房
- セントラル空調
- エコジョーズ
- モニタ付インターホン
- ブロードバンド回線(光ファイバー等の高速インターネット)
備考 ■地番40-45 ■現在間取図にある1階のウッドデッキはありません ■駐車3台可能(※車種要現地確認) ■現在入居中の為、内覧には事前のご予約をお願いいたします。 ■現在入居中の為、お引き渡しに多少お時間を要しますことを、ご理解とご了承いただけますと幸いです。 ■お部屋によって設備と間取が異なるものもございますので現況を優先させて頂きます ■契約不適合責任免責 学区色がついているアイコンをクリックすると、本物件までの道順を見ることができます。
主な周辺施設色がついているアイコンをクリックすると、本物件までの道順を見ることができます。
- 人見認定こども園約236m(徒歩3分)
- 北海道函館中部高校約870m(徒歩11分)
- 函館人見郵便局約110m(徒歩2分)
- 社会医療法人高橋病院約950m(徒歩12分)
- コープさっぽろひとみ店約221m(徒歩3分)
- スーパー魚長生鮮乃木市場約558m(徒歩7分)
- スーパーアークス千代台店約1.2km(徒歩15分)
- セブンイレブン函館人見町店約586m(徒歩8分)
- ツルハドラッグ函館人見店約169m(徒歩3分)
- Seria函館人見店約230m(徒歩3分)
対象となりうる支援制度
函館市
支援制度に関するお問合せは、不動産会社ではなく、自治体の公式ページまたは担当課までご確認ください。
上記リンクは、支援制度の対象条件を一定以上満たした物件に対し自動表示しています。
-
-
ホームページはこちら
北海道知事 渡島(9) 第722号
(株)三建不動産 【WEB面談可】- 加入団体
- (公社)北海道宅地建物取引業協会、(一社)全国賃貸不動産管理業協会、(公財)日本賃貸住宅管理協会
- 保証協会
- (公社)全国宅地建物取引業保証協会
- 公正取引協議会
- (一社)北海道不動産公正取引協議会
写真枚数:30枚
外観!
1階 間取図!
2階 間取図!
外観②!
外観③!
裏のお庭です!
裏のお庭!ウッドデッキは撤去しております。
散水栓と外電源です!
階段下を利用した物置です!
スロープが付いた外玄関です!
内玄関も広々!大きなシューズクローゼットがあります!
ゆったりとした1階廊下です!
1階 リビング!
1階 ダイニングスペース!
1階 キッチン!コの字型のシステムキッチンです!
1階 9帖洋室にはエアコン付きです!
1階 トイレは窓と温水洗浄便座と手洗い付きです!
1階 ユーティリティ!
1階 バスルーム!1坪で広々しております!
室内階段吹き抜けです!
2階 リビング!
2階 システム対面キッチン!
2階 バルコニー!
2階 和室!
2階 5.9帖洋室!
2階 6帖洋室はロフトと天窓付きです!
2階 10帖洋室!
2階 トイレも窓と温水洗浄便座と手洗い付きです!
2階 ユーティリティ!
2階 バスルーム!窓付きです!



おかげさまで創業45年!不動産のことなら三建不動産へ是非ご相談下さい!
●営業時間● 平日:9:30~19:00 土曜・祝日:9:30~18:00 日曜:定休日 【売買物件の無料査定、買取相談も行っておりますので、不動産全般ご相談下さい!】 是非ご連絡お待ちしております!