西旭岡町3丁目中古住宅 【オール電化エコキュート物件!】
ここに注目!【ご家族でゆったり暮らせるオール電化エコキュートの中古住宅が登場!】バス停まで徒歩5分と、通勤通学やお出かけに便利な立地です!広々3SLDKの間取りは、20.6帖のLDKが家族団らんの中心!IHクッキングヒーターや食器洗乾燥機付きのシステムキッチンなど、お料理が楽しくなる設備も充実しています。エコキュートと太陽光発電システムを搭載しており、家計に優しいエコライフを実現できるのも嬉しいポイント!外壁・屋根塗装、トイレ交換など、定期的なリフォームで大切に使われてきたお住まいです。スーパーまで徒歩10分、生活利便施設も徒歩圏内にあります!子育てファミリーにも嬉しい住環境です!ご見学は事前予約制となります。ぜひ一度、この快適な住まいをご覧ください! 詳しくは㈱ステップホーム函館売買事業部【0138-84-1718】までお気軽にお問い合わせ下さい!
| 価格 |
760万円
|
|---|---|
| 建物面積 | 125.86m² (38.07坪) |
| 土地面積 | 263.1m² (79.58坪)(公簿) |
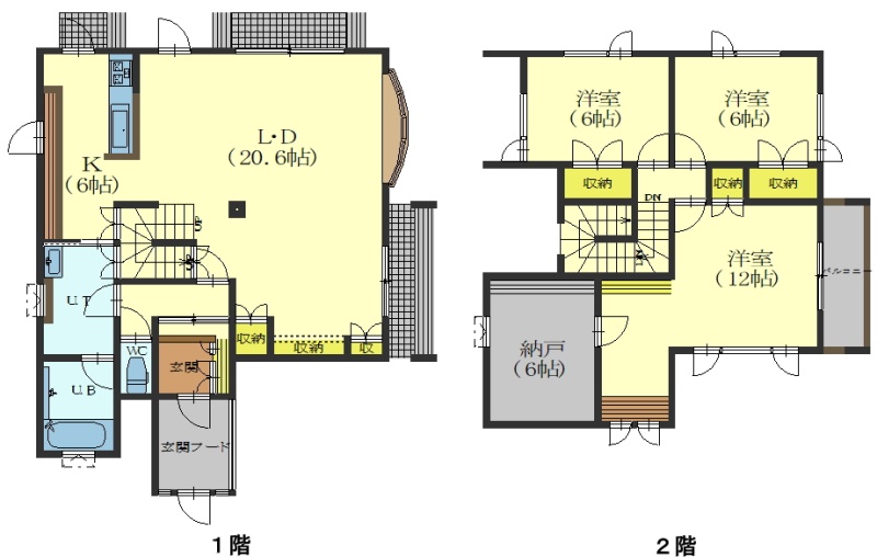
| 間取り | 3SLDK1階:LD20.6帖 K6帖 / 2階:洋室12帖 洋室6帖 洋室6帖 S6帖 |
| 住所 | 北海道函館市西旭岡町3-24-54 |
| 交通 | 函館バス 「児童公園前」停(徒歩5分) |
| 築年月 | 築26年(1999年10月) |
| 駐車場 |
あり 駐車可能台数:3台
※駐車スペースは現地要確認 |
販売状況、見学、詳細を知りたい方はこちら!
お電話の際は「連合隊の物件」とお伝えください。
情報掲載期限:あと26日(更新日 2025/12/20)
- 物件写真・概要
- 周辺地図
-
販売状況、見学、詳細を知りたい方はこちら!
おすすめポイント
- 駐車2台以上可
- オール電化
交通
- 函館バス 「児童公園前」停徒歩5分
物件概要
建物の階建 地上2階建 主要採光面 南西 構造 木造 バルコニー あり- ウッドデッキ・テラス
接道状況 一方 - 北西側幅10.20mの公道に17.97m接道
都市計画区域 市街化区域 私道負担 地目/地勢 宅地 地勢:平坦 国土法届出 土地権利 所有権 用途地域 - 第1種中高層住居専用地域(建ぺい率:50% / 容積率:100%)
引渡し 相談(■令和8年6月頃まで使用する為、引渡しはそれ以降となります。) 現況 入居中 取引態様 仲介 物件No 仲介手数料概算 33万円(金額は概算です。正確な金額は不動産会社へお問合せ下さい) 修繕履歴 - 2009年4月頃に物件全体を部分的にリフォームしています。施工内容:外壁塗装、屋根塗装
- 2011年4月頃に物件全体を部分的にリフォームしています。施工内容:オール電気に設備変更併せて、レンジフード交換
- 2016年4月頃に部分的にリフォームしています。施工内容:トイレ本体交換
設備・特徴 - 整形地
- 閑静な住宅街
- 物置
- 太陽光発電システム
- 庭が広い(10坪以上)
- 玄関フード
- オール電化
- フローリング
- 日当り良好
- 納戸・トランクルーム
- シューズボックス
- 全居室収納あり
- 温水洗浄トイレ
- シャワー付洗面化粧台
- 浴室に窓
- 浴室1坪以上
- IHクッキングヒーター
- コンロ3口以上
- システムキッチン
- カウンターキッチン
- 食器洗乾燥機
- エアコン付
- 電気暖房
- セントラル空調
- エコキュート
- モニタ付インターホン
- 田舎暮らし向き
備考 ■契約不適法責任免責 ■地区計画:西旭岡町3丁目地区に指定されているため、第1種低層住居専用地域と同じ内容となります。 ■太陽光パネル設置済み 売電有 ■令和8年6月頃まで使用する為、引渡しはそれ以降となります。 ■現在使用中の為、内見は事前予約が必要となります。 学区色がついているアイコンをクリックすると、本物件までの道順を見ることができます。
主な周辺施設色がついているアイコンをクリックすると、本物件までの道順を見ることができます。
- コープさっぽろ旭岡店約724m(徒歩10分)
- 函館西旭岡郵便局約969m(徒歩13分)
- 認定こども園遺愛旭岡幼稚園約1.6km(徒歩20分)
- セイコーマート函館西旭岡店約2.1km(徒歩26分)
- 認定こども園旭岡保育園約2.3km(徒歩29分)
- 旭岡公園約1.2km(徒歩15分)
- 亀尾郵便局約4.3km(徒歩53分)
- すずらんヶ丘キャンプ場約8.1km(徒歩101分)
- 市民の森約3km(徒歩37分)
- サンキ旭岡店約727m(徒歩10分)
対象となりうる支援制度
函館市
支援制度に関するお問合せは、不動産会社ではなく、自治体の公式ページまたは担当課までご確認ください。
上記リンクは、支援制度の対象条件を一定以上満たした物件に対し自動表示しています。
-
※連合隊は物件情報の精度向上に努めています:「物件情報に誤りがある」「成約済みである」などお気付きの点がございましたらこちらよりご連絡ください。
写真枚数:30枚

函館市・北斗市・七飯町の不動産取引の事なら当店までお気軽に♪
函館市・北斗市・七飯町の物件を取り揃えております! お客様にぴったりな物件探しのお手伝い!!そして住まいのパートナーとして幅広くお力になれるようスタッフ一同心よりお待ちしております。