【2950万円⇒2580万円/居抜き/店舗併用住宅】釧路湿原を眺望できるお店(旧ポムドテール)ポム字幌呂原野南六線
ここに注目!【金額大幅調整!!2950万円⇒2580万円】【国立公園釧路湿原】を眺望できる店舗併用住宅!野生動物の鹿や丹頂、多くの野鳥たちに囲まれた自然あふれる環境!店舗には設備が完備されており、とても綺麗で、家具や食器など再利用できるので、すぐにでも営業を開始できます!以前はポムドテールというベーグルやコーヒーを提供するカフェで人気の場所でした!釧路からの観光客や地元の住民に需要のある最適な立地。1階部分の住居は8帖と6帖の2DKで、清潔感のあふれる白基調でデザインされています。ここに住みながらお店を営業するもよし!従業員の住居にするもよし!幅広い活用が可能です!
| 価格 |
2,580万円
|
|---|---|
| 建物面積 | 130.68m² (39.53坪) |
| 土地面積 | 1000.01m² (302.5坪)(公簿) |
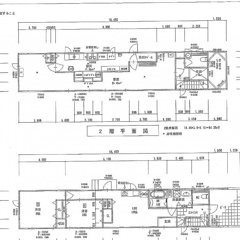
| 間取り | その他1階:DK10帖 洋室8帖 洋室6帖 / 2階:その他40帖 |
| 住所 | 北海道阿寒郡鶴居村字幌呂原野南六線45-9 |
| 交通 | |
| 築年月 | 築12年(2013年12月) |
| 駐車場 |
あり 駐車可能台数:8台
|
販売状況、見学、詳細を知りたい方はこちら!
お電話の際は「連合隊の物件」とお伝えください。
情報掲載期限:あと28日(更新日 2025/12/24)
- 物件写真・概要
- 周辺地図
-
販売状況、見学、詳細を知りたい方はこちら!
おすすめポイント
- 駐車2台以上可
- 追い焚き風呂
- 土地付き提案住宅
物件概要
建物の階建 地上2階建 主要採光面 南東 構造 木造 接道状況 一方 - 東側幅6.00mの公道に69.24m接道 位置指定:無
都市計画区域 非線引区域 私道負担 なし 地目/地勢 宅地 地勢:平坦 国土法届出 不要 土地権利 所有権 用途地域 - 無指定
引渡し 相談 現況 空き(※店舗は閉業しております) 施工業者 株式会社総合住研 取引態様 仲介 物件No 仲介手数料概算 91万7,400円(金額は概算です。正確な金額は不動産会社へお問合せ下さい) 設備・特徴 - 高台に立地
- 土地付き提案住宅
- 庭が広い(10坪以上)
- 日当り良好
- 照明器具付
- フローリング
- 吹き抜け
- 3面採光
- 全居室収納あり
- トイレ2ヶ所以上
- シャワー付洗面化粧台
- 浴室乾燥機
- 追い焚き風呂
- 浴室1坪以上
- システムキッチン
- LPガス
- エアコン付
- 24時間換気システム
- モニタ付インターホン
- その他インターネット
- 田舎暮らし向き
- デザイナーズ
備考 学区色がついているアイコンをクリックすると、本物件までの道順を見ることができます。
主な周辺施設
- セイコーマート幌呂店約550m(徒歩7分)
-
ホームページはこちら
北海道知事 釧路(1) 第567号
(株)むらづくり鶴居
※連合隊は物件情報の精度向上に努めています:「物件情報に誤りがある」「成約済みである」などお気付きの点がございましたらこちらよりご連絡ください。
写真枚数:26枚
鶴居村の不動産ならむらづくり鶴居に相談!
【若者のチャレンジ=村への貢献】鶴居村の地域活性化を目的に令和4年4月、村と民間企業、個人出資の元に創業。村が抱える不動産の課題を役場と連携して解決します。