【リフォーム済!豊美2丁目 中古住宅】
ここに注目!リビングを広く開放的に、リフォームはシンプルながらも遊び心を加えました!一軒家となれば広いリビングを希望されるお客様多いですよね!もともとは洗面化粧台がなかったこちらのお家、私の強い希望で洗面化粧台設置しました。豊美は小中学校もすぐ近く、外環状線乗り口もすぐ近くなので遠出したい方にはうってつけ☆高速道路も繋がったのでどこから乗るか!も大事ですね。外環状線だけじゃなくスーパーやドラックストアも徒歩圏内ですし、バス停乗り口もすぐなので学生さんにも安心です!是非この機会にご検討ください。
| 価格 |
1,430万円
|
|---|---|
| 建物面積 | 85.28m² (25.79坪) |
| 土地面積 | 177.46m² (53.68坪)(公簿) |
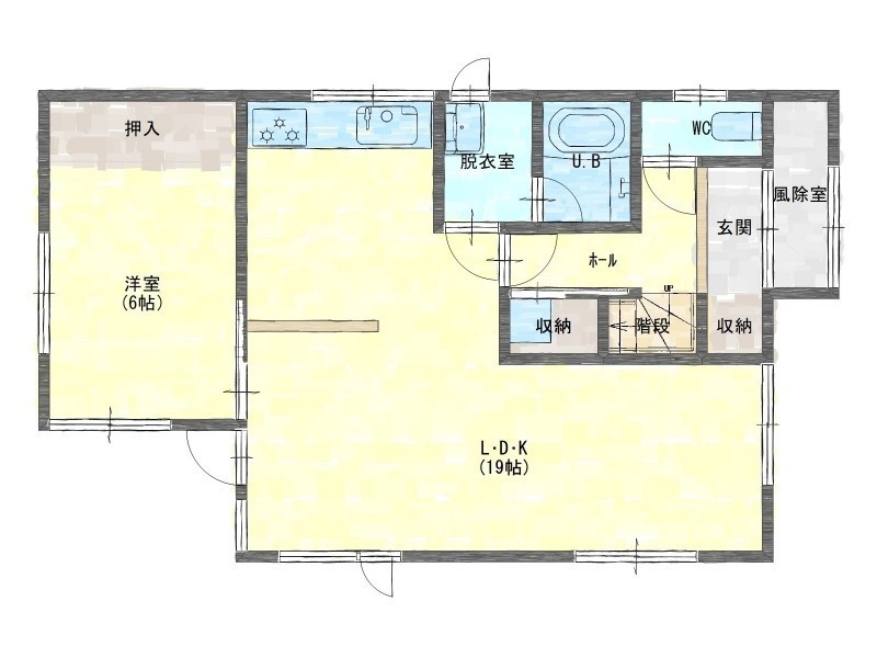
| 間取り | 3LDK1階:LDK19帖 洋室6帖 洋室6帖 洋室6帖 |
| 住所 | 北海道釧路郡釧路町豊美2-11-15 |
| 交通 | 東釧路駅(徒歩53分)|くしろバス「豊美2丁目」停 (徒歩1分)道順を見る |
| 築年月 | 築34年(1991年11月) |
| 駐車場 |
あり 駐車可能台数:1台
軽自動車駐車可能 |
販売状況、見学、詳細を知りたい方はこちら!
お電話の際は「連合隊の物件」とお伝えください。
情報掲載期限:あと28日(更新日 2026/4/28)
- 物件写真・概要
- 周辺地図
-
販売状況、見学、詳細を知りたい方はこちら!
おすすめポイント
- 駐車場あり
- 都市ガス
- リフォーム済み
- 近くて便利!徒歩5分以内にある施設
- 4分
4分- 周辺施設を地図で確認
交通色がついているアイコンをクリックすると、本物件までの道順を見ることができます。
- 東釧路駅JR釧網本線、花咲線徒歩53分(約4.2km)
- くしろバス「豊美2丁目」停 徒歩1分
物件概要
建物の階建 地上2階建 主要採光面 構造 木造 接道状況 一方 - 北東側の道に9.34m接道
都市計画区域 市街化区域 私道負担 なし 地目/地勢 宅地 地勢:平坦 国土法届出 不要 土地権利 所有権 用途地域 - 第1種低層住居専用地域(建ぺい率:50% / 容積率:80%)
引渡し 相談 現況 空き 取引態様 仲介 物件No 仲介手数料概算 53万7,900円(金額は概算です。正確な金額は不動産会社へお問合せ下さい) 修繕履歴 - 2025年7月頃にリビング・キッチン・玄関をリフォームしています。施工内容:内装クロス床天井張り替え・キッチン・洗面化粧台交換
設備・特徴 - 整形地
- 閑静な住宅街
- 玄関フード
- デザイナーズ
- 全居室収納あり
- 都市ガス
- モニタ付インターホン
備考 学区色がついているアイコンをクリックすると、本物件までの道順を見ることができます。
主な周辺施設色がついているアイコンをクリックすると、本物件までの道順を見ることができます。
-
ホームページはこちら
北海道知事 釧路(1) 第553号
センチュリー21 不動産専門(株) 釧路町店- 加入団体
- (公社)北海道宅地建物取引業協会
- 保証協会
- (公社)全国宅地建物取引業保証協会
- 公正取引協議会
- (一社)北海道不動産公正取引協議会
※連合隊は物件情報の精度向上に努めています:「物件情報に誤りがある」「成約済みである」などお気付きの点がございましたらこちらよりご連絡ください。
写真枚数:25枚
不動産売買・買取ならセンチュリー21 不動産専門株式会社へお任せください!
地域に根ざした不動産会社として、住まい探しに★愛★を持って向き合い、常に★誠実★なご提案を大切にしています。お客様や地域への★感謝★を忘れず、時代の変化に対応する新たな価値創造へ★挑戦★し続け、安心と信頼の暮らしを支えます‼