堀川町3階建住宅
ここに注目!値下げいたしました。ご覧いただきありがとうございます!共栄小学校までは徒歩2分で、交通量の少ない道を通るので子育て世代のご家族にオススメです!どこか懐かしいレトロな空間の中にらせん階段が主役のお家◎大きなお部屋が4つもあり、キッチンからダイニングを見渡せるので安心◎落ち着いた空間が広がり、ゆったり過ごしたい方にとてもおすすめです◎ インナーガレージ付きで雪の日も安心です。 リフォームをしてこだわりのお家にすることもおすすめですし、ちょっとした別荘や倉庫としてもおすすめです!
| 価格 |
390万円
|
|---|---|
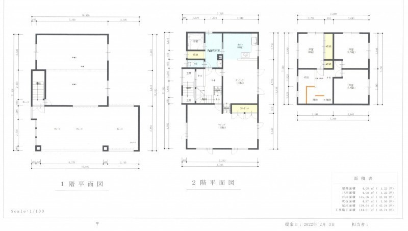
| 建物面積 | 132.29m² (40.01坪) |
| 土地面積 | 165.29m² (50坪)(公簿) |
| 間取り | 4LDK洋室 |
| 住所 | 北海道釧路市堀川町3-21 |
| 交通 | 釧路駅(徒歩20分)道順を見る |
| 築年月 | 築44年(1981年10月) |
| 駐車場 |
あり 駐車可能台数:3台
|
販売状況、見学、詳細を知りたい方はこちら!
お電話の際は「連合隊の物件」とお伝えください。
情報掲載期限:あと27日(更新日 2026/3/23)
- 物件写真・概要
- 周辺地図
-
販売状況、見学、詳細を知りたい方はこちら!
おすすめポイント
- 駐車2台以上可
- 車庫あり
- 南向き
- 都市ガス
- 近くて便利!徒歩5分以内にある施設
- 5分
5分- 4分
4分- 周辺施設を地図で確認
交通色がついているアイコンをクリックすると、本物件までの道順を見ることができます。
物件概要
建物の階建 地上3階建 主要採光面 南 構造 木造 接道状況 一方 都市計画区域 市街化区域 私道負担 地目/地勢 宅地 地勢:平坦 国土法届出 土地権利 所有権 用途地域 - 第1種住居地域(建ぺい率:60% / 容積率:200%)
引渡し 相談 現況 空き 取引態様 仲介 物件No 仲介手数料概算 33万円(金額は概算です。正確な金額は不動産会社へお問合せ下さい) 修繕履歴 - 2010年7月頃に部分的にリフォームしています。施工内容:室内2階の2部屋を1部屋に、3階の2部屋を1部屋にした
設備・特徴 - 閑静な住宅街
- 車庫あり
- 物置
- 照明器具付
- 吹き抜け
- シャワー付洗面化粧台
- 浴室1坪以上
- コンロ3口以上
- システムキッチン
- 都市ガス
備考 長い雨が続くと半地下室にうっすら雨水がたまることがあります。また、トイレに水抜きバルブがないため、トイレの管は修理してもらう必要があります。 学区色がついているアイコンをクリックすると、本物件までの道順を見ることができます。
主な周辺施設色がついているアイコンをクリックすると、本物件までの道順を見ることができます。
-
ホームページはこちら
北海道知事 釧路(2) 第522号
(株)住まいるハウジング- 加入団体
- (公社)北海道宅地建物取引業協会
- 保証協会
- (公社)全国宅地建物取引業保証協会
- 公正取引協議会
- (一社)北海道不動産公正取引協議会
※連合隊は物件情報の精度向上に努めています:「物件情報に誤りがある」「成約済みである」などお気付きの点がございましたらこちらよりご連絡ください。
写真枚数:16枚
釧路市で注文住宅の設計・リフォームをしています。
お客様のライフスタイルに合わせて手の届く価格でご提案させて頂いております。 土地の売買など不動産全般も取り扱いしておりますので、お気軽にご相談ください。