昭和南6丁目一戸建て
ここに注目!(株)ウッディクラフトさんの建築による築浅一戸建てです。幅8mの南西道路に面しており、陽当たり良好です。1階2階にそれぞれトイレがあり、空調設備や他の設備も充実しております。3.7帖のウォークインクローゼット、他の2部屋にはそれぞれクローゼットがあります。2階には約5畳のルーフバルコニーがあり、洗濯物を安心して干せます。車庫もあり、玄関前は舗装もしてあります。地震にも強く、ぜひご内見ください。(内見の際は事前に御連絡ください)
| 価格 |
3,300万円
|
|---|---|
| 建物面積 | 108.06m² (32.68坪) |
| 土地面積 | 240.59m² (72.77坪)(公簿) |
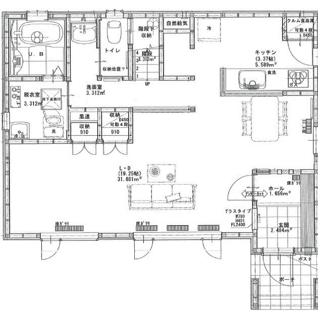
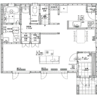
| 間取り | 3LDK1階:LD19.25帖 DK5.01帖 / 2階:洋室6帖 洋室6帖 洋室6.75帖 その他3.74帖 |
| 住所 | 北海道釧路市昭和南6丁目19-2 |
| 交通 | 新富士駅(徒歩41分)道順を見る |
| 築年月 | 築6年(2019年12月) |
| 駐車場 |
あり 駐車可能台数:3台
|
販売状況、見学、詳細を知りたい方はこちら!
お電話の際は「連合隊の物件」とお伝えください。
情報掲載期限:あと13日(更新日 2025/12/3)
- 物件写真・概要
- 周辺地図
-
販売状況、見学、詳細を知りたい方はこちら!
おすすめポイント
- 駐車2台以上可
- 車庫あり
- 南向き
- 都市ガス
- 追い焚き風呂
- 近くて便利!徒歩5分以内にある施設
- 3分
3分- 周辺施設を地図で確認
交通色がついているアイコンをクリックすると、本物件までの道順を見ることができます。
物件概要
建物の階建 地上2階建 主要採光面 南 構造 木造(在来工法) バルコニー あり(8.2m²)- ルーフバルコニー
- バルコニー南向き
接道状況 一方 - 南西側幅8.00mの公道に12.48m接道 位置指定:無
都市計画区域 市街化区域 私道負担 なし 地目/地勢 宅地 地勢:平坦 国土法届出 不要 土地権利 所有権 用途地域 - 第1種低層住居専用地域(建ぺい率:50% / 容積率:80%)
引渡し 相談 現況 入居中 取引態様 仲介 物件No 仲介手数料概算 115万5,000円(金額は概算です。正確な金額は不動産会社へお問合せ下さい) 設備・特徴 - 整形地
- 閑静な住宅街
- デザイナーズ
- 日当り良好
- 照明器具付
- 車庫あり
- シューズボックス
- 全居室収納あり
- トイレ2ヶ所以上
- 温水洗浄トイレ
- シャワー付洗面化粧台
- 追い焚き風呂
- 食器洗乾燥機
- 浄水器
- 都市ガス
- 24時間換気システム
- モニタ付インターホン
- エコジョーズ
- 制震
- バリアフリー
- ウォークインクローゼット
備考 学区色がついているアイコンをクリックすると、本物件までの道順を見ることができます。
主な周辺施設色がついているアイコンをクリックすると、本物件までの道順を見ることができます。
-
ホームページはこちら北海道知事 釧路(1) 第556号
(株)T's CREATE
※連合隊は物件情報の精度向上に努めています:「物件情報に誤りがある」「成約済みである」などお気付きの点がございましたらこちらよりご連絡ください。
写真枚数:20枚