新釧路町中古住宅
ここに注目!JR釧路駅徒歩圏の中古住宅のご紹介です。今回ご紹介する物件は私道含む約165坪の土地、私道ぬかしても約123坪の土地に木造2階建て・4LDK(延床面積・約43坪)の一部檜を使用した少し贅沢な中古住宅、1階ホール横にはピアノが置ける洋室があります。1階・2階は吹き抜けになっており、開放的な居住空間の中、木のぬくもりとゆったりとした時間がながれていくような感じがする家の造りです。主要採光面方向からの日当たりも良好です!気になる私道は単独所有となっております!内見予約お待ちしております。
| 価格 |
1,500万円
|
|---|---|
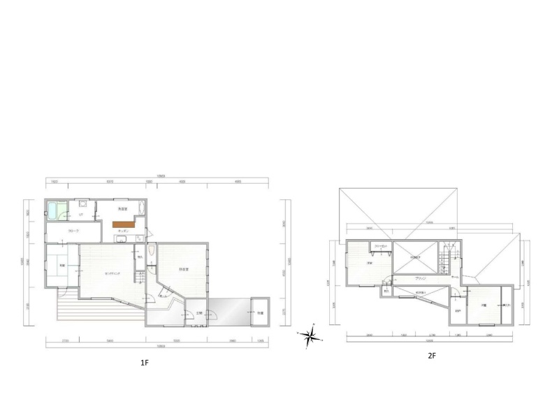
| 建物面積 | 143.93m² (43.53坪) |
| 土地面積 | 545.57m² (165.03坪) |
| 間取り | 4LDK1階:LDK 和室 洋室 / 2階:洋室 洋室 |
| 住所 | 北海道釧路市新釧路町5-11 |
| 交通 | 釧路駅(徒歩19分)道順を見る |
| 築年月 | 築26年(1999年9月) |
| 駐車場 |
あり 駐車可能台数:3台
|
販売状況、見学、詳細を知りたい方はこちら!
お電話の際は「連合隊の物件」とお伝えください。
情報掲載期限:あと15日(更新日 2026/4/22)
- 物件写真・概要
- 周辺地図
-
▼クリックで左の拡大画像が変わります。 すべての写真を拡大
販売状況、見学、詳細を知りたい方はこちら!
おすすめポイント
- 駐車2台以上可
- 近くて便利!徒歩5分以内にある施設
- 5分
5分- 周辺施設を地図で確認
交通色がついているアイコンをクリックすると、本物件までの道順を見ることができます。
物件概要
建物の階建 地上2階建 主要採光面 南東 構造 木造 バルコニー あり- ウッドデッキ・テラス
接道状況 一方 - 北西側幅4.70mの私道に12.10m接道
都市計画区域 市街化区域 私道負担 あり(私道面積:140m²) 地目/地勢 宅地 地勢:平坦 国土法届出 土地権利 所有権 用途地域 - 第1種住居地域(建ぺい率:60% / 容積率:200%)
引渡し 相談 現況 入居中 施工業者 晃盛田中工務店 建築確認番号 第H10認建釧路001117号 取引態様 仲介 物件No 仲介手数料概算 56万1,000円(金額は概算です。正確な金額は不動産会社へお問合せ下さい) 修繕履歴 - 2020年12月頃に部分的にリフォームしています。施工内容:2階・和室から洋室にリフォーム
- 2020年6月頃に部分的にリフォームしています。施工内容:1階・便器交換
設備・特徴 - 日当り良好
- 吹き抜け
- 納戸・トランクルーム
- セントラル空調
- モニタ付インターホン
- システムキッチン
備考 【地番(5-16)、地積(223.85㎡)】と【地番(5-8)、地積(1739.58㎡)の一部を分筆後、既存道路含む(約321.72㎡)】のあわせた土地が売却条件となります。既存道路面積【約140㎡】となります。(既存道路)私道は単独所有となります。法22条区域、宅地造成等工事規制区域、津波災害警戒区域内。現状有姿渡し。※隣地の道路使用承諾条件あり。 学区色がついているアイコンをクリックすると、本物件までの道順を見ることができます。
主な周辺施設色がついているアイコンをクリックすると、本物件までの道順を見ることができます。
-
ホームページはこちら
北海道知事 釧路(4) 第508号
家工房(株)- 加入団体
- (公社)北海道宅地建物取引業協会
- 保証協会
- (公社)全国宅地建物取引業保証協会
- 公正取引協議会
- (一社)北海道不動産公正取引協議会
※連合隊は物件情報の精度向上に努めています:「物件情報に誤りがある」「成約済みである」などお気付きの点がございましたらこちらよりご連絡ください。
写真枚数:30枚
1Fリビング
1Fリビング
1洋室
2F洋室
ブリッジ
階段
玄関
トイレ
洗面化粧台
キッチン
ユニットバス
吹き抜け
脱衣室
1F和室
1Fリビング
1Fリビング
1F洋室
1F洋室
1F和室
釧路の新築・リーフォーム・住まい探しは家工房株式会社へ!
「感動」こそが技術の証し。「笑顔」の創造が仕事です。私たちは「お客様の満足」にとことんこだわった建築・リフォームのプロ集団です。住宅・店舗・マンション等の設計から施工まで一貫した管理で夢を形にします。